Terraced house for sale in Bridlington YO15, 5 Bedroom

Bridlington, Bridlington, UK

Quick Summary

Property Type:
Terraced house
Status:
For sale
Price
£ 120,000
Beds:
5
Baths:
1
County
East Riding of Yorkshire
Town
Bridlington
Outcode
YO15
Location
Richmond Street, Bridlington YO15
Marketed By:
Reeds Rains
Posted
2018-10-03
YO15 Rating:





More Info?
Please contact Reeds Rains on 01262 353987 or Request Details

Property Description



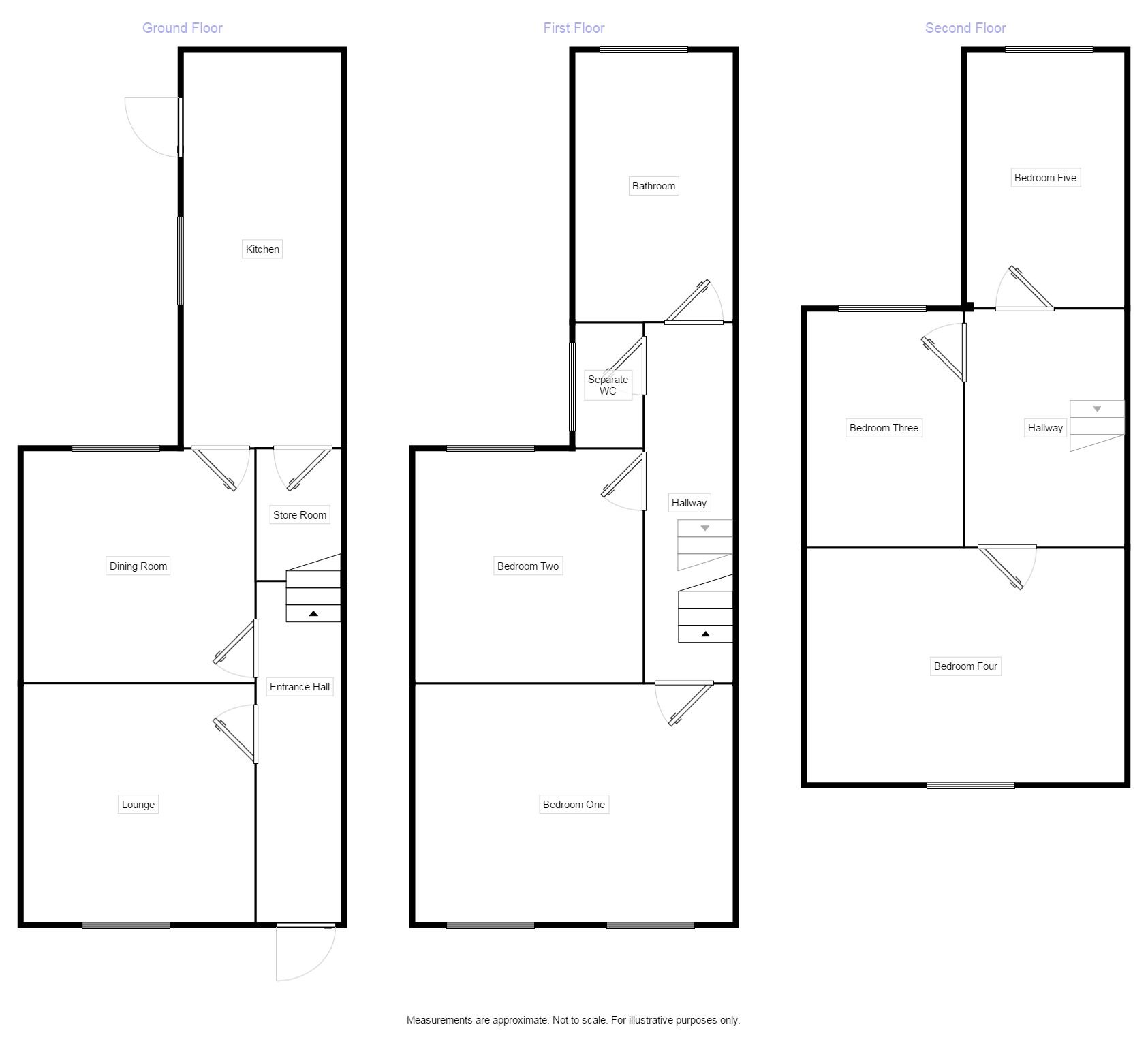
+++vacant possession+++ no onward chain++++close to the sea front++++beautifully presented terraced property++++Offered to the market is this very well presented spacious five bedroom terraced family house situated within walking distance to the harbour, spa, sea front and promenade in this popular coastal resort. The property comprises to the ground floor: An entrance lobby, entrance hall, lounge, dining room and a fully fitted kitchen located at the rear of the property Over the first and second floors are the five good sized bedrooms and a complimenting house bathroom and separate w.C. Externally to the rear of the property is a good sized yard area. The property also benefits from gas central heating with double glazing throughout and has great potential as an investment property with the possibility of buy to let. Viewing is highly recommended as this property is sure to be of interest to many. Please call reeds rains bridlington to arrange an accompanied viewing. EPC Grade D.

Entrance Hall

A double glazed door gives access into inner porch with a further door leading into the entrance hall with gas central heating radiator, wood effect laminate flooring and stairs to first floor.

Lounge (3.45m x 3.56m)

With a double glazed bay window to front aspect, feature coving and deep skirting, stone fireplace with gas fire inset, gas central heating radiator, TV point, wall lights and power points.

Dining Room

With a double glazed window to the rear aspect, TV point, gas central heating radiator, power points and under stair storage.

Kitchen (2.39m x 5.87m)

Offering a range of wall and floor units with complementing work surfaces, plumbing for washing machine and tumble dryer with space for under counter fridge and freezer, stainless steel sink and drainer with mixer tap over, gas central heating radiator and wall mounted gas central heating boiler, double glazed window to side with double door leading out to rear yard area.

Bathroom (2.90m x 3.78m)

Offering a 3 piece suite in white comprising of corner bat with shower attached, pedestal hand wash basin and dual flush WC. There is a further shower quadrant with mains fed shower, white gloss cupboards, gas central heating and double glazed window to rear aspect.

Separate WC

With low flush WC and double glazed window to side aspect.

Bedroom 2 (2.90m x 3.78m)

With double glazed window to rear aspect, gas central heating radiator, picture rail and power points.

Bedroom 1 (3.56m x 4.67m)

With a double glazed bay window to front aspect and a further double glazed window. Feature coving and deep skirting, gas central heating radiator, TV and power points.

Bedroom 3 (2.44m x 3.40m)

With gas central heating radiator, double glazed window to rear aspect, pedestal hand wash basin and power points.

Bedroom 4 (3.48m x 4.67m)

With a double glazed window to front aspect, gas central heating radiator, telephone point, satellite TV point and power points.

Bedroom 5 (3.76m x 2.57m)

With double glazed window to rear aspect, built in storage cupboard, gas central heating radiator and power points.

External

To the front of the property is a small yard area with boundary wall. The rear offers a fully enclosed yard with brick built storage and access to the front for bins etc.

Bridlington

Located on the East Coast of Yorkshire Bridlington has been a popular destination for many years for English holidays / weekend breaks. Bridlington has award-winning beaches of golden sands which stretch out on either side of the historic harbour and in the hot summer months these bustle with a hive of activity. The beautifully designed promenades provide everything from fun-fairs to quiet places where you can sit and watch the world and boats go by. Bridlington has a range of shops, attractions and restaurants to suit most needs and the historic Old Town of Bridlington offer a fascinating contrast of a time gone by. A little further in land are the beautiful picturesque villages and scenery of the Yorkshire Wolds which make a great day out. Bridlington's neighbouring resorts of Scarborough and Hornsea also offer many attractions, and the spectacular Heritage Coastline of Bempton and Flamborough known for is famous bird reserves and fabulous walks

Important note to purchasers:

We endeavour to make our sales particulars accurate and reliable, however, they do not constitute or form part of an offer or any contract and none is to be relied upon as statements of representation or fact. Any services, systems and appliances listed in this specification have not been tested by us and no guarantee as to their operating ability or efficiency is given. All measurements have been taken as a guide to prospective buyers only, and are not precise. Please be advised that some of the particulars may be awaiting vendor approval. If you require clarification or further information on any points, please contact us, especially if you are traveling some distance to view. Fixtures and fittings other than those mentioned are to be agreed with the seller.

/8

Floor Plans

Property Location

Marketed by Reeds Rains



By submitting this form, you accept our Terms of Use.

Disclaimer Property descriptions and related information displayed on this page are marketing materials provided by Reeds Rains. estateagents365.uk does not warrant or accept any responsibility for the accuracy or completeness of the property descriptions or related information provided here and they do not constitute property particulars. Please contact Reeds Rains for full details and further information.