Terraced house for sale in Batley WF17, 2 Bedroom

Batley, Batley, UK

Quick Summary

Property Type:
Terraced house
Status:
For sale
Price
£ 75,000
Beds:
2
Baths:
1
Recepts:
1
County
West Yorkshire
Town
Batley
Outcode
WF17
Location
Commonside, Batley WF17
Marketed By:
Reeds Rains
Posted
2024-04-30
WF17 Rating:





More Info?
Please contact Reeds Rains on 0113 427 8995 or Request Details

Property Description



A fantastic investment or first time buyer home situated in the lovely Yorkshire town of Batley. Close to Batley town centre, train station, Leeds and the M62 this house is perfect for the city commuter looking for a quieter pace of living.

Property Details

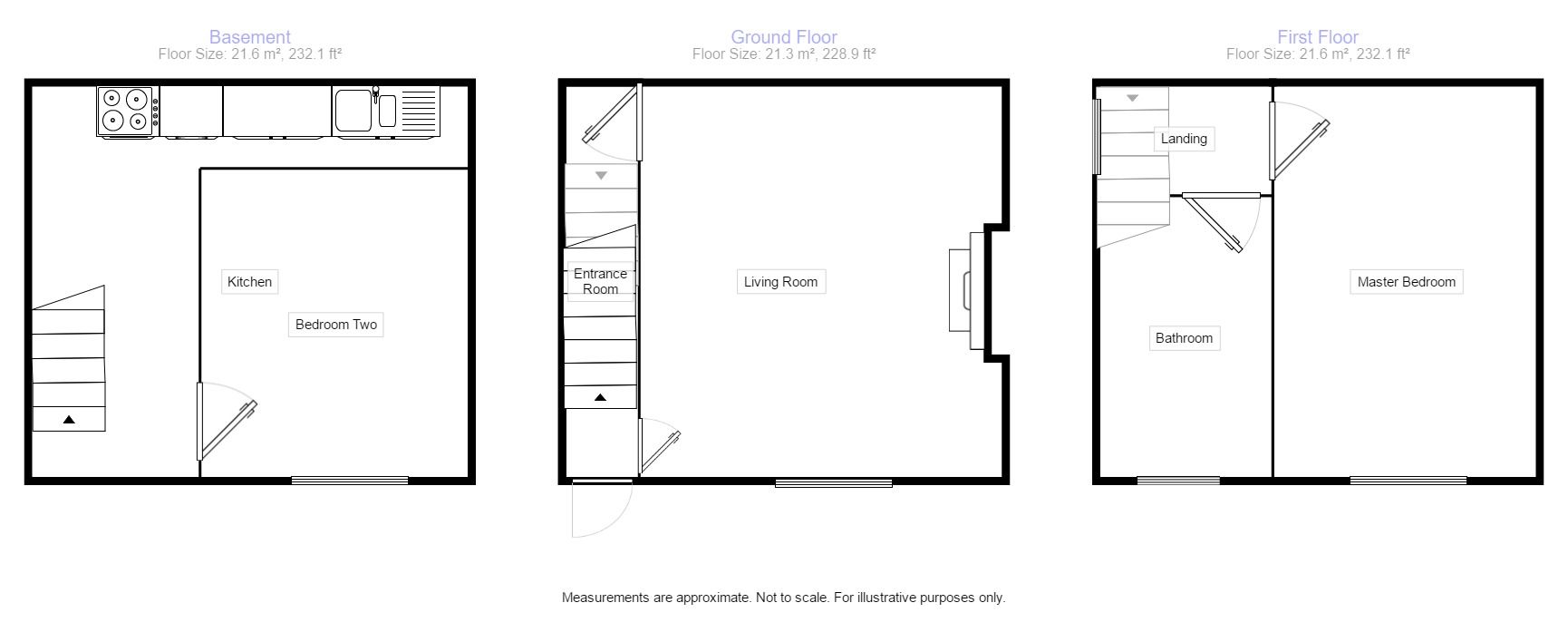
Accommodation consisting in brief; Entrance Porch, Living room. Basement Kitchen and Bedroom Two. First floor Master Bedroom and Main Bathroom. A small garden to the front of the property. ** Awaiting EPC **

Entrance Porch

PVC double glazed window to the front, coat hooks and room for shoe storage. Access to ground floor rooms and stairs to first floor accommodation.

Kitchen (4.41m x 4.90m)

An open plan kitchen with dining space, an array of wall and base units, sink and drainer, gas hob and electric oven.

Bedroom 2 (2.91m x 3.00m)

Situated in the basement, this double bedroom has fitted wardrobes, gas central heating radiator and front facing double glazed window.

Living Room (4.29m x 4.74m)

A great sized main reception room, with an electric fire, high ceilings, gas central heating radiator and a front facing double glazed window.

Bathroom

A good sized bathroom with a shower cubicle, WC, wash hand basin, gas central heating radiator and double glazed window to the front.

Master Bedroom (2.97m x 4.78m)

A great sized master bedroom with a gas central heating radiator and double glazed window to the front.

External

A small gardened area to the front and on street parking.

Important note to purchasers:

We endeavour to make our sales particulars accurate and reliable, however, they do not constitute or form part of an offer or any contract and none is to be relied upon as statements of representation or fact. Any services, systems and appliances listed in this specification have not been tested by us and no guarantee as to their operating ability or efficiency is given. All measurements have been taken as a guide to prospective buyers only, and are not precise. Please be advised that some of the particulars may be awaiting vendor approval. If you require clarification or further information on any points, please contact us, especially if you are traveling some distance to view. Fixtures and fittings other than those mentioned are to be agreed with the seller.

/8

Floor Plans

Property Location

Marketed by Reeds Rains



By submitting this form, you accept our Terms of Use.

Disclaimer Property descriptions and related information displayed on this page are marketing materials provided by Reeds Rains. estateagents365.uk does not warrant or accept any responsibility for the accuracy or completeness of the property descriptions or related information provided here and they do not constitute property particulars. Please contact Reeds Rains for full details and further information.