Studio to rent in London W2, 0 Bedroom

London, London, UK

Quick Summary

Property Type:
Studio
Status:
To rent
Price
£ 300
Beds:
0
County
London
Town
London
Outcode
W2
Location
Queensborough Terrace, Bayswater W2
Marketed By:
Chancellors - Notting Hill
Posted
2024-04-09
W2 Rating:





More Info?
Please contact Chancellors - Notting Hill on 020 3463 9602 or Request Details

Property Description

Property Description

A superb modern apartment with wood floors, shower room, high ceilings, and fully fitted kitchen, all within a short stroll of Hyde Park.

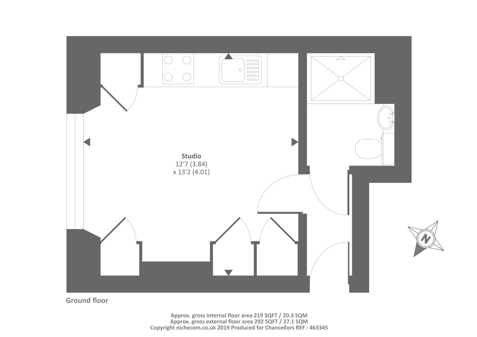
Floor Plans

Property Location

Marketed by Chancellors - Notting Hill


By submitting this form, you accept our Terms of Use.

Disclaimer Property descriptions and related information displayed on this page are marketing materials provided by Chancellors - Notting Hill. estateagents365.uk does not warrant or accept any responsibility for the accuracy or completeness of the property descriptions or related information provided here and they do not constitute property particulars. Please contact Chancellors - Notting Hill for full details and further information.