Semi-detached house to rent in Worcester Park KT3, 4 Bedroom

Worcester Park, Worcester Park, UK

Quick Summary

Property Type:
Semi-detached house
Status:
To rent
Price
£ 577
Beds:
4
Baths:
1
Recepts:
2
County
London
Town
Worcester Park
Outcode
KT3
Location
Lyndhurst Drive, Worcester Park KT3
Marketed By:
Foxtons - New Malden
Posted
2024-05-09
KT3 Rating:





More Info?
Please contact Foxtons - New Malden on 020 8022 0882 or Request Details

Property Description

Zero deposit available. Long let. Finished to an excellent standard throughout, this amazing 4 bedroom semi-detached House benefits from a double reception room, modern eat-in kitchen, large private Garden and off-street parking.

Lyndhurst Drive is situated close to both Malden Manor and Worcester Park mainline stations for fast links in to London and a short distance to a range of amenities within Worcester Park High Street.

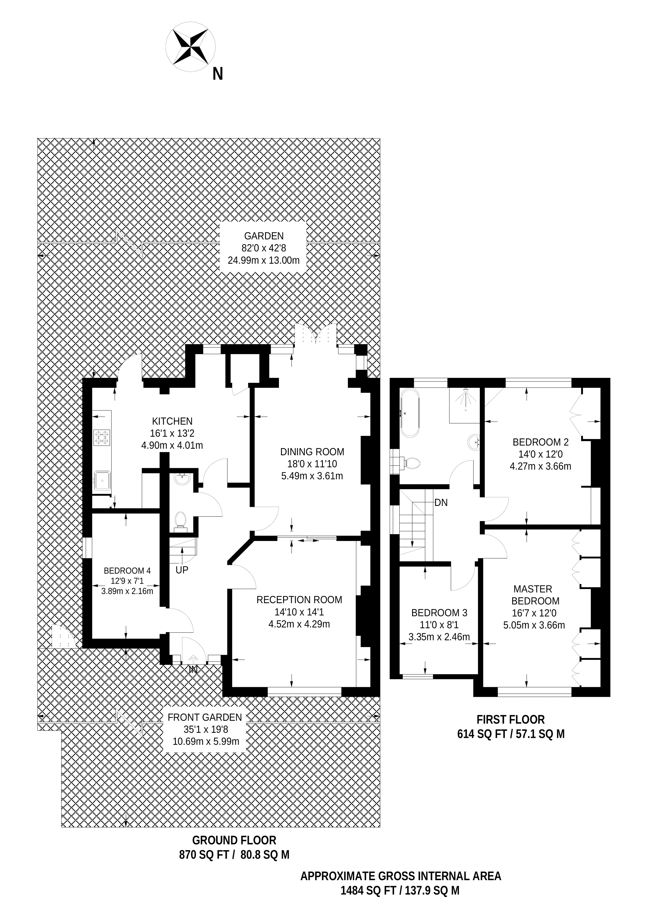
Floor Plans

Property Location

Marketed by Foxtons - New Malden


By submitting this form, you accept our Terms of Use.

Disclaimer Property descriptions and related information displayed on this page are marketing materials provided by Foxtons - New Malden. estateagents365.uk does not warrant or accept any responsibility for the accuracy or completeness of the property descriptions or related information provided here and they do not constitute property particulars. Please contact Foxtons - New Malden for full details and further information.