Semi-detached house to rent in London SW19, 5 Bedroom

London, London, UK

Quick Summary

Property Type:
Semi-detached house
Status:
To rent
Price
£ 1,096
Beds:
5
County
London
Town
London
Outcode
SW19
Location
Kenilworth Avenue, Wimbledon Park SW19
Marketed By:
Foxtons - Wimbledon
Posted
2018-11-12
SW19 Rating:





More Info?
Please contact Foxtons - Wimbledon on 020 3542 2190 or Request Details

Property Description

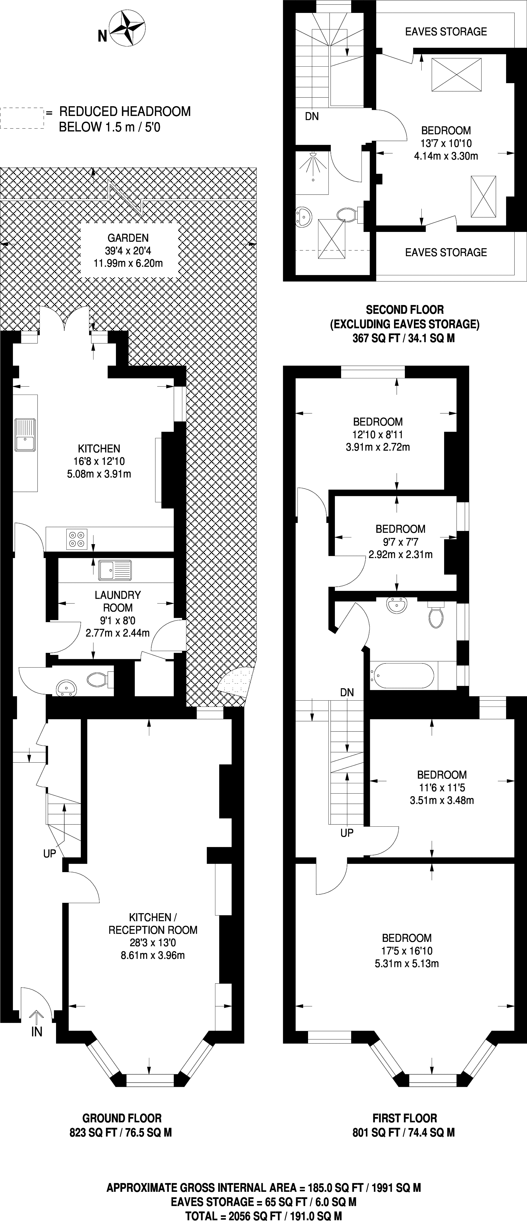
Long let. Boasting a recent refurbishment throughout, this simply stunning five bedroom house is generously arranged over three floors boasting a large private garden, double reception, utility room and quiet residential location.

Kenilworth Avenue is situated within easy reach of the wide range of shops, bars, cafes and restaurants of central Wimbledon with Wimbledon station (National Rail, District Line and Tramlink) also close by.

Floor Plans

Property Location

Marketed by Foxtons - Wimbledon


By submitting this form, you accept our Terms of Use.

Disclaimer Property descriptions and related information displayed on this page are marketing materials provided by Foxtons - Wimbledon. estateagents365.uk does not warrant or accept any responsibility for the accuracy or completeness of the property descriptions or related information provided here and they do not constitute property particulars. Please contact Foxtons - Wimbledon for full details and further information.