Semi-detached house to rent in Horsham RH13, 5 Bedroom

Horsham, Horsham, UK

Quick Summary

Property Type:
Semi-detached house
Status:
To rent
Price
£ 369
Beds:
5
Baths:
3
Recepts:
2
County
West Sussex
Town
Horsham
Outcode
RH13
Location
Oakhill Road, Horsham RH13
Marketed By:
At Home Estates
Posted
2019-01-20
RH13 Rating:





More Info?
Please contact At Home Estates on 01403 453724 or Request Details

Property Description

This Victorian period 5 bedroom home will perfectly suit a commuter family that are keen on entertaining and socialising. With Horsham regularly being one of the best towns to live in the UK, it's bound to attract growing families from far and wide and some of the features are going to delight you!

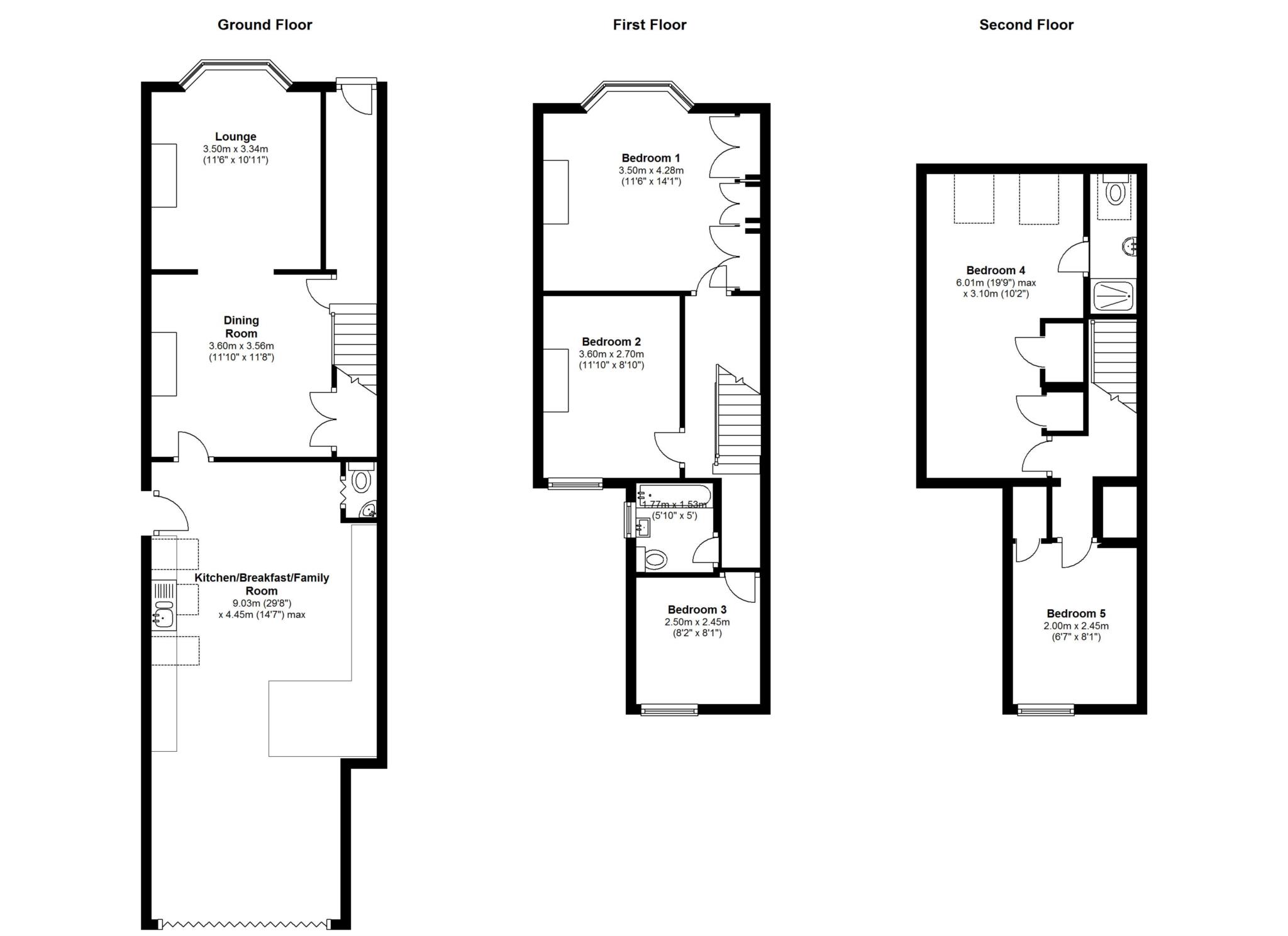
Split over 3 floors, your new home is a five minute walk to the train station. As you enter the house and into the hallway you'll find the dining room entrance, which leads through to the lounge with log burner on one side, and the impressive kitchen/diner/entertaining area, finished to an extraordinarily high specification (including underfloor heating), on the other. This has to be seen to be believed and is a real selling feature. Coming into Summer, you'll become the social hub and spend a lot of time entertaining in this light and airy room as the large patio style, bi-fold doors lead out onto decking and the garden. A downstairs WC is also provided.

From the hall way, stairs lead to level one and three double bedrooms and a family bathroom, and then further up to level two are 2 more double bedrooms, with one offering a large living space and en suite.

The school catchments are also highly desirable and you're just a short walk from the beautiful Horsham town centre. There is hard court and parking to the front of the property. There's a lot to love about this spacious home, so call us quickly!

Notice
All photographs are provided for guidance only.

Floor Plans

Property Location

Marketed by At Home Estates


By submitting this form, you accept our Terms of Use.

Disclaimer Property descriptions and related information displayed on this page are marketing materials provided by At Home Estates. estateagents365.uk does not warrant or accept any responsibility for the accuracy or completeness of the property descriptions or related information provided here and they do not constitute property particulars. Please contact At Home Estates for full details and further information.