Semi-detached house for sale in Swansea SA6, 2 Bedroom

Swansea, Swansea, UK

Quick Summary

Property Type:
Semi-detached house
Status:
For sale
Price
£ 50,000
Beds:
2
Baths:
1
Recepts:
1
County
Swansea
Town
Swansea
Outcode
SA6
Location
Clydach Road, Ynystawe, Swansea SA6
Marketed By:
John Francis - Morriston
Posted
2018-12-08
SA6 Rating:





More Info?
Please contact John Francis - Morriston on 01792 925004 or Request Details

Property Description

For sale by public auction.
This traditional semi-detached two bedroom property offers great potential and is located in the popular village of Ynystawe with excellent access to the M4 Motorway via Junction 45. There is a driveway providing off road parking and a good size rear garden. EER: 29/83
guide price: Circa £50,000

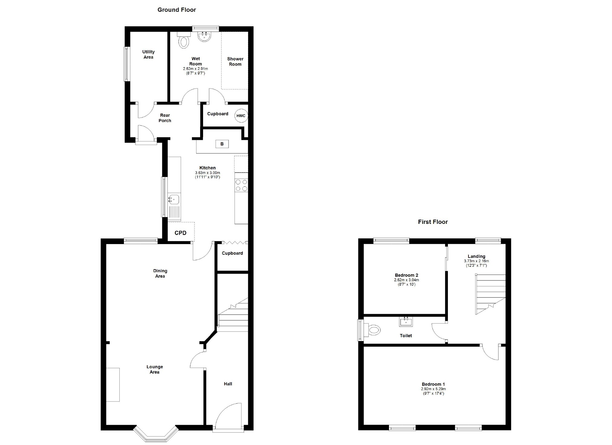
Entrance Porch

Entered via double glazed door, door to;

Hallway

Doors to;

Lounge (11'3 x 9'9 (3.43m x 2.97m))

Double glazed bay window to front, radiator, electric fire, opening to;

Dining Room (11'9 x 11'7 (3.58m x 3.53m))

Double glazed window to rear, radiator.

Kitchen (11'8 x 8'1 (3.56m x 2.46m))

Rolltop work surface, integrated electric hob oven, 1½ stainless steel sink and drainer, double glazed window to side, door to;

Pantry Area

Under stairs storage.

Rear Porch

Shower Room

Radiator, WC, wash hand basin, double glazed window and door to rear, shower cubicle.

Utility Room

Double glazed window to side.

First Floor Landing

Doors to;

Bedroom One (15'6 x 9'8 (4.72m x 2.95m))

Two double glazed windows to front, radiator.

Bedroom Two (10'0 x 8'7 (3.05m x 2.62m))

Radiator, window to rear.

Cloakroom

WC, wash hand basin, window to side.

Externally

To the rear is a large tiered garden laid to lawn with mature shrubs and a patio area.

Services

We are advised that main services are connected to the property.

Auction Date & Venue

For Sale by Public Auction at Parc Y Scarlets, Llanelli on Wednesday, 26th September 2018 at 1pm (unless previously sold or withdrawn).

Solicitors

David Sanders & Co
58 Mansel Street
Swansea
SA1 5TE
Contact: Ms Laura Winters

Viewing

Strictly by Appointment with Morriston Office on

You may download, store and use the material for your own personal use and research. You may not republish, retransmit, redistribute or otherwise make the material available to any party or make the same available on any website, online service or bulletin board of your own or of any other party or make the same available in hard copy or in any other media without the website owner's express prior written consent. The website owner's copyright must remain on all reproductions of material taken from this website.

Floor Plans

Property Location

Marketed by John Francis - Morriston



By submitting this form, you accept our Terms of Use.

Disclaimer Property descriptions and related information displayed on this page are marketing materials provided by John Francis - Morriston. estateagents365.uk does not warrant or accept any responsibility for the accuracy or completeness of the property descriptions or related information provided here and they do not constitute property particulars. Please contact John Francis - Morriston for full details and further information.