Semi-detached house for sale in Stansted CM24, 3 Bedroom

Stansted, Stansted, UK

Quick Summary

Property Type:
Semi-detached house
Status:
For sale
Price
£ 350,000
Beds:
3
Baths:
1
Recepts:
2
County
Essex
Town
Stansted
Outcode
CM24
Location
Stoney Common, Stansted CM24
Marketed By:
Intercounty - Stansted
Posted
2019-04-08
CM24 Rating:





More Info?
Please contact Intercounty - Stansted on 01279 246659 or Request Details

Property Description



A charming, period cottage with original features, situated in a popular location within easy access to the mainline railway station. The property has two reception rooms, a generously sized kitchen, three bedrooms and an upstairs family bathroom. There is off street parking and a larger than average rear garden. The property is offered to the market on a chain free basis. EPC band F.

Additional Information

Stansted Mountfitchet is a thriving village in the north Essex countryside close to the borders of Hertfordshire, providing rail links to London Liverpool Street and easy access to M11 and Stansted Airport. The village offers a mix of new and old with an original Norman castle, windmill, newly refurbished medical centre, local schooling and plenty of bars and restaurants, with many period and newly built homes, Stansted offers something for all.

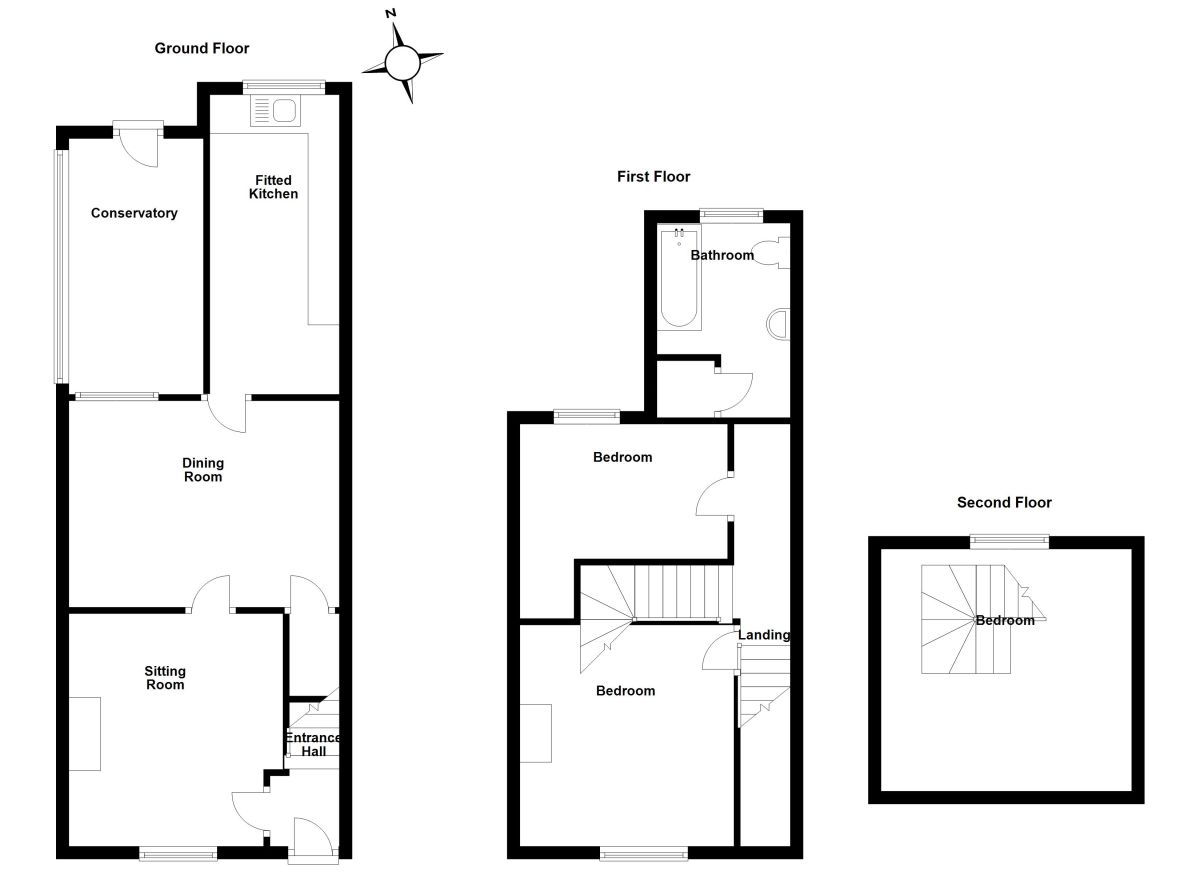
Lounge (3.07m x 3.94m)

Dining Room (3.18m x 3.84m)

Kitchen (2.06m x 4.47m)

Lean-To (1.85m x 3.51m)

Master Bedroom (3.38m x 4.06m)

Bedroom 2 (3.07m x 3.33m)

Bedroom 3 (1.65m x 3.15m)

Family Bathroom (2.26m x 2.77m)

Outside

Important note to purchasers:

We endeavour to make our sales particulars accurate and reliable, however, they do not constitute or form part of an offer or any contract and none is to be relied upon as statements of representation or fact. Any services, systems and appliances listed in this specification have not been tested by us and no guarantee as to their operating ability or efficiency is given. All measurements have been taken as a guide to prospective buyers only, and are not precise. Please be advised that some of the particulars may be awaiting vendor approval. If you require clarification or further information on any points, please contact us, especially if you are traveling some distance to view. Fixtures and fittings other than those mentioned are to be agreed with the seller.

/4

Floor Plans

Property Location

Marketed by Intercounty - Stansted



By submitting this form, you accept our Terms of Use.

Disclaimer Property descriptions and related information displayed on this page are marketing materials provided by Intercounty - Stansted. estateagents365.uk does not warrant or accept any responsibility for the accuracy or completeness of the property descriptions or related information provided here and they do not constitute property particulars. Please contact Intercounty - Stansted for full details and further information.