Semi-detached house for sale in Romford RM3, 3 Bedroom

Romford, Romford, UK

Quick Summary

Property Type:
Semi-detached house
Status:
For sale
Price
£ 300,000
Beds:
3
Baths:
1
Recepts:
1
County
Essex
Town
Romford
Outcode
RM3
Location
Dudley Road, Harold Hill RM3
Marketed By:
Balgores
Posted
2024-04-11
RM3 Rating:





More Info?
Please contact Balgores on 01708 629412 or Request Details

Property Description

*** guide price £300,000 - £325,000 ***

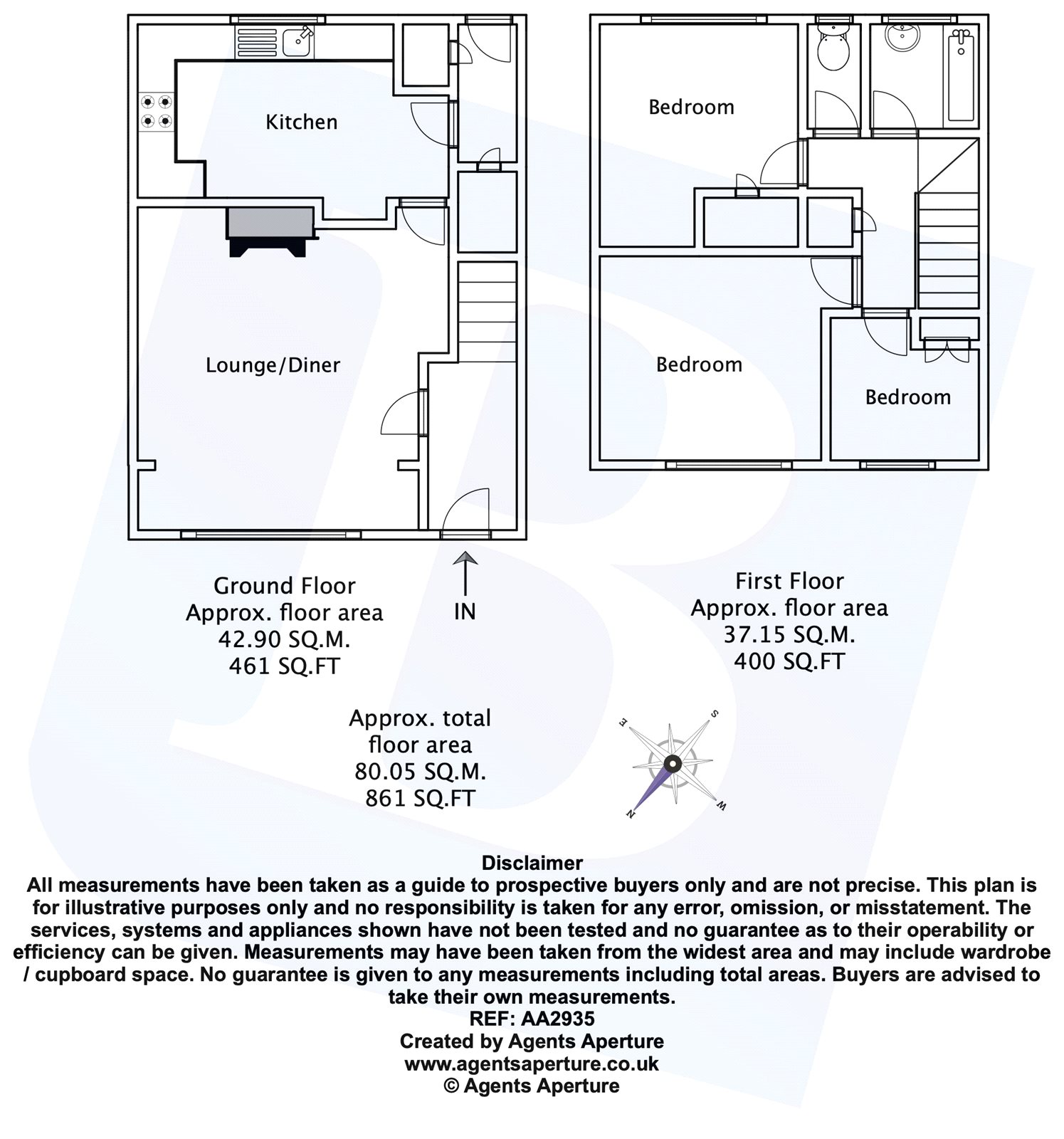
conveniently located for Harold Wood main line train station is this three bedroom semi detached family home which benefits from a 15ft lounge, 15ft kitchen, first floor bathroom, separate wc and a 55ft rear garden.

Entrance Hall

Stairs to accommodation, radiator, laminate flooring.

Living Room

15'0215'08>14'06 Double glazed window to front, featured fireplace, two radiators, smooth ceiling with cornice coving.

Kitchen

15'03x9' Double glazed window to rear, a range of eye and base level units with work tops over, inset sink with mixer tap and drainer unit, integrated Hotpoint oven and grill, integrated Hotpoint gas hob, integrated extractor fan, integrated dishwasher, splash back tiles, smooth ceiling with cornice coving, lino flooring.

Storage Area

Understairs storage, built in storage.

First Floor Landing

Built in storage, doors to accommodation.

Master Bedroom

11'05x11'04 Double glazed window to front, radiator.

Bedroom Two

12'02>9'01x9'09 Double glazed window to rear, radiator, storage cupboard, smooth ceiling.

Separate wc

Double glazed obscure window to rear, low level wc, smooth ceiling, complementary tiles.

Bathroom

Obscure double glazed window to rear. P shaped panelled bath with mixer tap and wall mounted shower attachment, pedestal sink with mixer tap. Radiator, complementary tiles, smooth ceiling, lino flooring.

Bedroom Three

7'07x6'11 Double glazed window to front, radiator, fitted wardrobes.

Garden

Measuring 55. Commencing with patio area, remainder laid to lawn, side access, two timber sheds to remain, shrubs to boarders.

Floor Plans

Property Location

Marketed by Balgores


By submitting this form, you accept our Terms of Use.

Disclaimer Property descriptions and related information displayed on this page are marketing materials provided by Balgores. estateagents365.uk does not warrant or accept any responsibility for the accuracy or completeness of the property descriptions or related information provided here and they do not constitute property particulars. Please contact Balgores for full details and further information.