Semi-detached house for sale in Prescot L35, 3 Bedroom

Prescot, Prescot, UK

Quick Summary

Property Type:
Semi-detached house
Status:
For sale
Price
£ 115,000
Beds:
3
Baths:
1
Recepts:
1
County
Merseyside
Town
Prescot
Outcode
L35
Location
Willow Grove, Prescot L35
Marketed By:
Reeds Rains
Posted
2018-09-14
L35 Rating:





More Info?
Please contact Reeds Rains on 0151 382 7958 or Request Details

Property Description



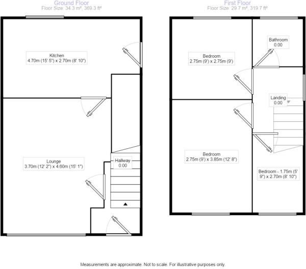
You won't be weeping for this willow ! This fabulously refurbished home is now ready to take viewings. Lashings of Laura Ashley everywhere this isn't your standard white wall cream carpet job. You'll be able to put your couch down and stick the kettle on! Three bedrooms, corner plot and no chain - What are you waiting for? The ground floor offers an entrance hall, living room and a kitchen/diner. The first floor has three size able bedrooms and a family bathroom. Externally are gardens to the front, rear and side. EPC grade D

Entrance Hall

Double glazed window with a side facing aspect, gas central heating radiator and laminate flooring. Access to meter cupboards and stairs to the first floor.

Front Reception Room (3.8m x 4.8m)

Double glazed window with a front facing aspect, gas central heating radiator and carpeted flooring.

Kitchen / Dining Room (3.4m x 4.7m)

Two double glazed windows with a rear facing aspect, gas central heating radiator . Door to access the rear garden. Range of base and wall units with a stainless steel sink and drainer. Range cooker.

First Floor Landing

Double glazed window with a side facing aspect, carpeted flooring and storage cupboards.

Bedroom 1 (3.0m x 3.9m)

Double glazed window with a front facing aspect, gas central heating radiator and carpeted flooring.

Bedroom 2 (2.9m x 2.9m)

Double glazed window with a rear facing aspect, gas central heating radiator and carpeted flooring. Loft hatch.

Bedroom 3 (1.9m x 2.9m)

Double glazed window with a front facing aspect, gas central heating radiator and carpeted flooring.

Bathroom (1.7m x 1.8m)

Double glazed window with a rear facing aspect, gas central heating radiator and vinyl flooring. Heated towel rail. Paneled bath with over head shower unit. Sink and WC.

Front Garden

Laid to lawn garden with patio area.

Rear Garden

Laid to lawn with seasonal borders and decked area.

Important note to purchasers:

We endeavour to make our sales particulars accurate and reliable, however, they do not constitute or form part of an offer or any contract and none is to be relied upon as statements of representation or fact. Any services, systems and appliances listed in this specification have not been tested by us and no guarantee as to their operating ability or efficiency is given. All measurements have been taken as a guide to prospective buyers only, and are not precise. Please be advised that some of the particulars may be awaiting vendor approval. If you require clarification or further information on any points, please contact us, especially if you are traveling some distance to view. Fixtures and fittings other than those mentioned are to be agreed with the seller.

/8

Floor Plans

Property Location

Marketed by Reeds Rains



By submitting this form, you accept our Terms of Use.

Disclaimer Property descriptions and related information displayed on this page are marketing materials provided by Reeds Rains. estateagents365.uk does not warrant or accept any responsibility for the accuracy or completeness of the property descriptions or related information provided here and they do not constitute property particulars. Please contact Reeds Rains for full details and further information.