Semi-detached house for sale in Newport NP11, 3 Bedroom

Newport, Newport, UK

Quick Summary

Property Type:
Semi-detached house
Status:
For sale
Price
£ 117,500
Beds:
3
Baths:
1
Recepts:
2
County
Newport
Town
Newport
Outcode
NP11
Location
Bryngwyn Road, Newbridge, Newport NP11
Marketed By:
Wayman & Co
Posted
2024-05-25
NP11 Rating:





More Info?
Please contact Wayman & Co on 01495 522928 or Request Details

Property Description

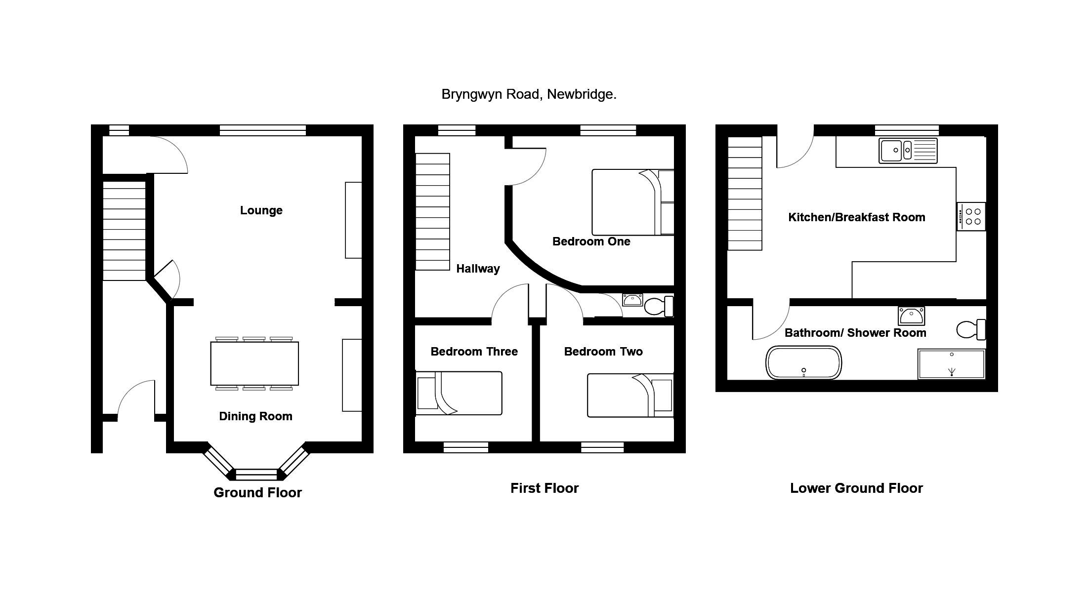
Description Wayman & Co Estate Agents are pleased to offer for sale this three storey, semi detached property situated on the outskirts of Newbridge offering good road links and close to Newbridge Train Station. The accommodation over three floors offers entrance hall, dining area with bay window, lounge, three bedrooms, first floor WC, lower ground floor modern kitchen and modern bathroom/WC with shower. The property has gardens front and rear, double glazing and a gas central heating system. Viewing highly recommended.

Entrance hall Double glazed entrance door, painted finish to walls and ceiling, laminated wood flooring.

Dining area 12' 5" x 6' 6" (3.80m x 2.M) Double glazed bay window to front aspect, coved finish to ceiling, radiator, open to lounge.

Lounge 13' 3" x 10' 9" (4.05m x 3.30m) Double glazed window to rear aspect, coved and panted finish to walls and ceiling, laminated wood flooring, door leading to stairs to lower ground floor.

Landing Double glazed window to rear aspect, panted finish to walls and ceiling, radiator.

Bedroom one 10' 8" x 9' 1" (3.26m x 2.78m) Double glazed window to rear aspect, coved and painted finish to ceiling, papered finish to walls, radiator.

Bedroom two 8' 3" x 8' 0" (2.54m x 2.44m) Double glazed window to front aspect, coved finish to ceiling, laminated wood flooring, radiator.

Bedroom three 7' 9" x 7' 9" (2.38m x 2.38m) Double glazed window to front aspect, coved finish to ceiling, laminated wood flooring, radiator.

First floor WC Painted finish to walls and ceiling, low level WC, pedestal wash had basin, laminated wood flooring.

Lower ground floor

kitchen/breakfast room 15' 5" inc stairs x 10' 7" inc stairs (4.70m inc stairs x 3.25m inc stairs) Stairs leading down from dining room, double glazed window to rear aspect, modern matching base a wall units with glazed display cabinets, gas hob, electric oven, extractor hood, bowl and a half single drainer sink, plumbing for automatic washing machine and dish washer, tiled flooring, cupboard housing wall mounted gas central heating combination boiler.

Bathroom/WC 13' 7" x 4' 9" (4.15m x 1.47m) Double glazed window to side aspect, modern suite in white comprising, panel bath with mixer tap and shower attachment, wash hand basin, low level WC, double shower enclosure, tiled floor, built in cupboard, radiator.

Outside

front garden Forecourted front garden, pathway leading to rear garden, storm porch over font door.

Rear garden Patio and Lawned garden, mature shrubs and hedge boundaries.

Floor Plans

Property Location

Marketed by Wayman & Co



By submitting this form, you accept our Terms of Use.

Disclaimer Property descriptions and related information displayed on this page are marketing materials provided by Wayman & Co. estateagents365.uk does not warrant or accept any responsibility for the accuracy or completeness of the property descriptions or related information provided here and they do not constitute property particulars. Please contact Wayman & Co for full details and further information.