Semi-detached house for sale in Malmesbury SN16, 3 Bedroom

Malmesbury, Malmesbury, UK

Quick Summary

Property Type:
Semi-detached house
Status:
For sale
Price
£ 136,000
Beds:
3
Baths:
2
County
Wiltshire
Town
Malmesbury
Outcode
SN16
Location
5 Chapel Way, Crudwell SN16
Marketed By:
Cotswold Estate Agents
Posted
2018-10-14
SN16 Rating:





More Info?
Please contact Cotswold Estate Agents on 01242 354074 or Request Details

Property Description

An attractive newly built, shared ownership, three-bedroom home set in a delightful village location. The property benefits from views to countryside and is convenient to village amenities including a primary school, public inns, hotel and restaurant, and village church.

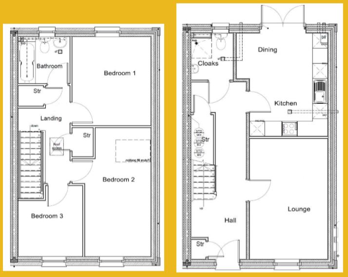
The spacious living accommodation comprises, generous entrance hall with doors to storage cupboard, cloakroom and stairs to galleried landing and first floor living accommodation. Cloakroom with double glazed window to rear aspect with white suite comprising WC, pedestal wash hand basin, chrome ladder style radiator, medicine cabinet and extractor fan. Lounge with sash window to front aspect with views to countryside, TV and telephone points. Extensively fitted kitchen comprising a matching range of cream eye and base level storage units with brushed aluminium handles, built in Neff fan assisted oven with grill, Neff four ring gas hob with splash backing and extractor hood, Inset one and a half bowl single drainer sink unit, wooden effect laminated roll edged work surfaces, space and plumbing for washing machine, appliance space, wall mounted gas boiler, double glazed French doors to patio and enclosed rear garden.

Galleried landing with, trap to loft space and doors to airing cupboard, storage cupboard, family bathroom, and bedrooms one, two and three. Bathroom with window to rear aspect, comprising modern white suite with panelled bath, tiled splashbacks, fitted shower unit, pedestal wash hand basin, WC, wall mounted chrome ladder style, electric shaver point and an extractor fan. Bedroom one with sash window to front aspect with lovely views to countryside. Bedroom two with sash window to rear aspect. Bedroom three with sash window to front aspect with views to countryside.

The property benefits from double glazing and gas fired central heating.

To the exterior:

Block paved hard standing for two vehicles. The front garden being wood chipped and stocked with various shrubs with a flagstone pathway leading round to the side of the property where there is gated side access to the rear garden. The rear garden is enclosed with wooden panelled fencing, benefitting from a patio area having been laid to lawn, also with a garden shed.

Entrance hall 22’11 max x 7’ max

Lounge 15’6 x 10’1

Kitchen / Dining room 14’1 max x 11’7

Bathroom 6’10 x 6’2

Bedroom one 17’1 max x 10’5 max

Bedroom two 11’10 x 10’5

Bedroom three 9’2 max x 8’8 max


Floor Plans

Property Location

Marketed by Cotswold Estate Agents



By submitting this form, you accept our Terms of Use.

Disclaimer Property descriptions and related information displayed on this page are marketing materials provided by Cotswold Estate Agents. estateagents365.uk does not warrant or accept any responsibility for the accuracy or completeness of the property descriptions or related information provided here and they do not constitute property particulars. Please contact Cotswold Estate Agents for full details and further information.