Semi-detached house for sale in London SE9, 3 Bedroom

London, London, UK

Quick Summary

Property Type:
Semi-detached house
Status:
For sale
Price
£ 385,000
Beds:
3
Baths:
1
Recepts:
2
County
London
Town
London
Outcode
SE9
Location
William Barefoot Drive, London SE9
Marketed By:
Nested
Posted
2019-05-03
SE9 Rating:





More Info?
Please contact Nested on 020 8128 9373 or Request Details

Property Description

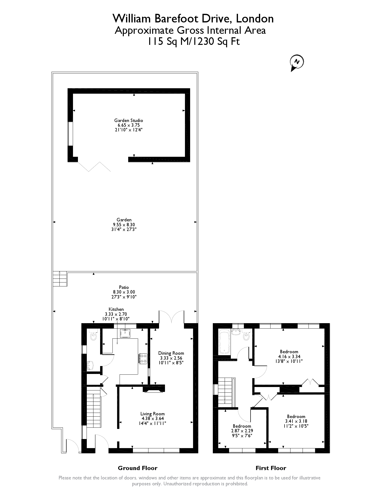
This charming semi-detached family home has been immaculately renovated by the present owners throughout and offers flexible accommodation, with ample storage, over 2 floors. On the ground floor, there is a separate fully fitted kitchen and a large reception room which adjoins the dining room with direct access to the private south-facing garden. On the first floor, there are three double bedrooms and a family bathroom. The good-sized rear garden benefits from an incredible outhouse (with power and Wi-Fi connection) which is presently used as a music studio but could also be a perfect home office, fitness studio or playroom.

The property is located in New Eltham and with Altash Gardens, Coldharbour Leisure Centre and for those keen golfers, Royal Blackheath Golf Club, there are plenty of outdoor options. New Eltham station, with fast trains to London Bridge, is within easy reach (0.7 mile), and the amenities of Chislehurst are only 1.3 mile away.

Floor Plans

Property Location

Marketed by Nested


By submitting this form, you accept our Terms of Use.

Disclaimer Property descriptions and related information displayed on this page are marketing materials provided by Nested. estateagents365.uk does not warrant or accept any responsibility for the accuracy or completeness of the property descriptions or related information provided here and they do not constitute property particulars. Please contact Nested for full details and further information.