Semi-detached house for sale in London SE20, 7 Bedroom

London, London, UK

Quick Summary

Property Type:
Semi-detached house
Status:
For sale
Price
£ 1,025,000
Beds:
7
Baths:
1
Recepts:
3
County
London
Town
London
Outcode
SE20
Location
Lennard Road, London SE20
Marketed By:
Robinson Jackson - Sydenham
Posted
2018-12-11
SE20 Rating:





More Info?
Please contact Robinson Jackson - Sydenham on 020 3478 3507 or Request Details

Property Description

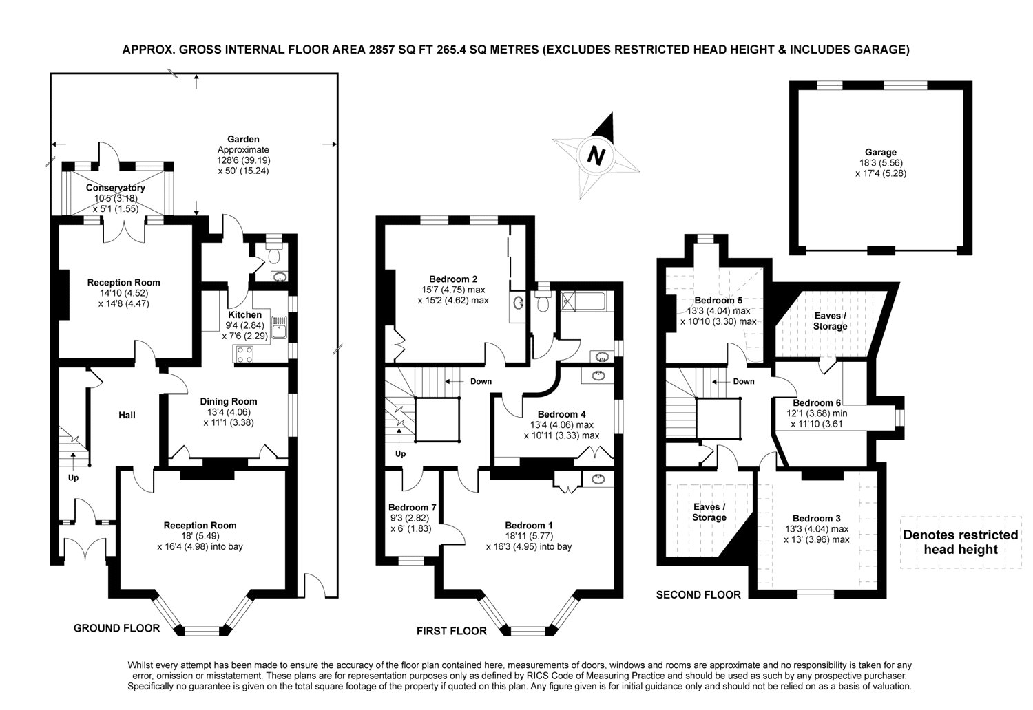
Amazing opportunity, substantial seven bedroom semi detached period house offered chain free with 128' x 50' garden, driveway, two garages, sash windows, 10' high ceilings, circa 2750 sq ft, set in a sought after location on the Sydenham and Beckenham border, ideal for Penge East station, Sydenham and Penge high street

Exterior
Wonderful 128' x 50' garden laid to lawn
Two garages
Front driveway providing off street parking for multiple cars

Floor Plans

Property Location

Marketed by Robinson Jackson - Sydenham


By submitting this form, you accept our Terms of Use.

Disclaimer Property descriptions and related information displayed on this page are marketing materials provided by Robinson Jackson - Sydenham. estateagents365.uk does not warrant or accept any responsibility for the accuracy or completeness of the property descriptions or related information provided here and they do not constitute property particulars. Please contact Robinson Jackson - Sydenham for full details and further information.