Semi-detached house for sale in Loanhead EH20, 4 Bedroom

Loanhead, Loanhead, UK

Quick Summary

Property Type:
Semi-detached house
Status:
For sale
Price
£ 380,000
Beds:
4
County
Midlothian
Town
Loanhead
Outcode
EH20
Location
"The Bryce" at Hillview Gardens, Nivensknowe Park, Loanhead EH20
Marketed By:
Cala Homes - Mayburn Park
Posted
2018-09-23
EH20 Rating:





More Info?
Please contact Cala Homes - Mayburn Park on 01324 315840 or Request Details

Property Description

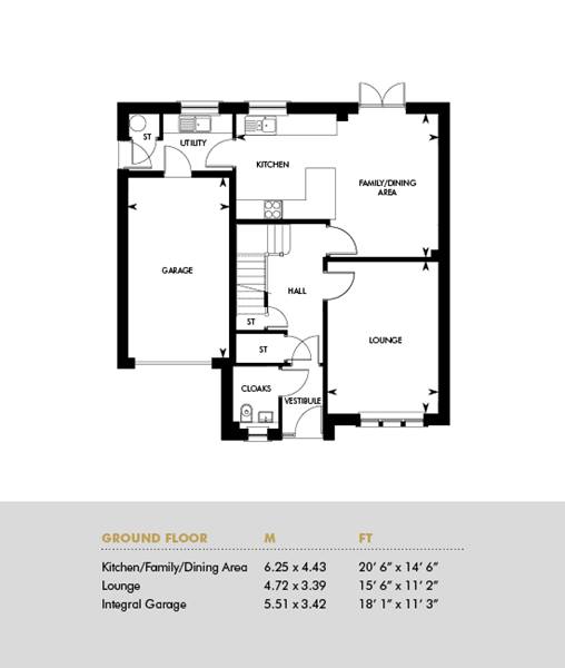
The charming Bryce features four spacious bedrooms, two of which are en suite and a well-equipped family bathroom with separate shower enclosure on the upper floor. Downstairs a spacious lounge to the front of the home and an open plan kitchen and family/dining area are both accessible from the inviting entrance hall.

Overall size: 1,612 sq ft

You can take a virtual tour of this home.

About Mayburn Park


Be moved before it’s too late

With the sought-after amenities of location, well-regarded schools and direct commuter links to the city also close by it is hardly surprising that that there are limited opportunities to move with CALA to Mayburn Park by December 18.

With limited homes remaining for a 2018 move, and a range of incentives* available, you will need to act quickly if you are considering a home here.

Desirable and commutable

Situated little more than five miles south of Edinburgh's vibrant city centre, this beautiful development of spacious 3,4 and 5 bedroom homes from cala’s award-winning Signature Collection offers the epitome of stylish, contemporary family living, not far from the city. Featuring a large, public open space running alongside May Burn this development creates a leafy retreat with every city convenience on it’s door step. Conveniently close to Straiton Retail Park and offering superb travel connections, Mayburn Park is well connected in every way. All of our homes here feature the high specification you’d expect from CALA as standard, and offer a range of flexible layouts meaning you can have a home that boasts both quality and space. So if you are looking to enjoy more space and style while staying in close reach of the city then look no further than setting up home with CALA at Mayburn Park.

And with our two stunning showhomes, the Crichton and the Cleland, available to view daily at Mayburn Park, you can drop in whenever suits or arrange a private appointment today and picture your future.

Contact us to discuss our final homes for a move this year with us, and make your dream move before it’s too late.

*T&Cs Apply

Opening Hours


Customer Reception & Showhomes are open daily from 11am to 5.30pm.

Floor Plans

Property Location

Marketed by Cala Homes - Mayburn Park


By submitting this form, you accept our Terms of Use.

Disclaimer Property descriptions and related information displayed on this page are marketing materials provided by Cala Homes - Mayburn Park. estateagents365.uk does not warrant or accept any responsibility for the accuracy or completeness of the property descriptions or related information provided here and they do not constitute property particulars. Please contact Cala Homes - Mayburn Park for full details and further information.