Semi-detached house for sale in Llandovery SA20, 3 Bedroom

Llandovery, Llandovery, UK

Quick Summary

Property Type:
Semi-detached house
Status:
For sale
Price
£ 215,000
Beds:
3
Baths:
1
Recepts:
2
County
Carmarthenshire
Town
Llandovery
Outcode
SA20
Location
Towy Avenue, Llandovery SA20
Marketed By:
John Francis - Lampeter
Posted
2024-05-02
SA20 Rating:





More Info?
Please contact John Francis - Lampeter on 01570 429002 or Request Details

Property Description

** A large semi-detached town house & large rear garden - viewing recommended **
Conveniently situated 3 bedroom extended town property being within easy level walking distance to the town centre of Llandovery which provides shops, rail station, college, etc. The property offers spacious family sized accommodation including large kitchen/breakfast room with good sized 26' long master bedroom. Outside there is a gravelled forecourt providing car parking with large mature rear garden including patio, fishpond and useful garden shed.

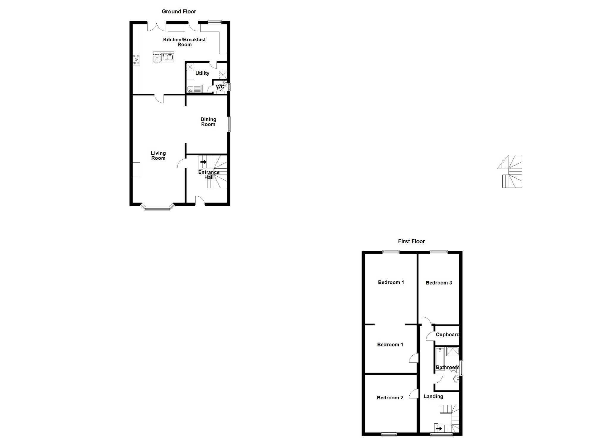
Accommodation

The property comprises a semi-detached town centre property of traditional construction with rendered elevations lying under a slated roof benefiting from a double storey rear extension. The property offers spacious family sized accommodation and benefits from gas central heating system and double-glazing. The accommodation provides as follows:

Entrance Hall

Double-glazed front entrance door, radiator, built-in under stairs storage cupboard, access to first floor, door to:

Open Plan Living Room (22'11 x 11'2 (6.99m x 3.40m))

Original slate fireplace and surround with tiled inserts and grate, bay window to front, beamed ceiling, 3 radiators, access through to:

Dining Area/Study (12'7 x 9'9 (3.84m x 2.97m))

Window to side, radiator.

Kitchen/Breakfast Room (20'2 max x 14'11 max (6.15m max x 4.55m max))

"L" shaped room, range of modern fitted base and eye-level cupboards with worktop surfaces over, centre island incorporating 1 ½ bowl single drainer sink unit with mixer tap, built-in dishwasher, cooker range with double electric oven, 6 ring gas hob and fitted hood over, fridge/ freezer, built-in fridge, French double-glazed doors to rear patio, separate double-glazed rear exterior door, 2 radiators, tiled floor, down lighters, door to:

Utility Area (8'11 max x 6'1 (2.72m max x 1.85m))

Fitted base cupboards with sink unit, plumbing and space for washing machine and tumble dryer, tiled floor, freezer space, door to:

Separate Wc

Wash hand basin, window to side.

First Floor Landing

Window to front, door to walk-in airing cupboard with shelving, doors to:

Bedroom 1 (26'9 x 11'1 overall (8.15m x 3.38m overall))

Currently divided into 2 areas with potential for en suite/dressing room, window to rear overlooking garden, 2 radiators, range of fitted wardrobes with matching chest of drawers and bedside cabinets and dressing table.

Bedroom 2 (12'5 x 11'3 max (3.78m x 3.43m max))

Window to front, radiator, timber effect flooring.

Bedroom 3 (15'1 x 9' (4.60m x 2.74m))

Window to rear, radiator.

Bathroom (9'3 x 6'4 max (2.82m x 1.93m max))

Modern suite comprising double tiled shower cubicle, bath, low level flush WC, vanity unit with wash hand basin with mixer tap, heated towel rail, tiled walls, tiled floor, extractor fan.

Externally

There is a forecourt area providing ample car parking space. There is a paved path to side leading to rear garden comprising of extensive grounds and gardens with mature lawn, conifers, shrubs, patio area, ornamental fishpond and garden shed/workshop approx 18' x 14' of corrugated iron construction.

Services

We are advised that mains electricity, water, drainage and gas are connected. EER 67

You may download, store and use the material for your own personal use and research. You may not republish, retransmit, redistribute or otherwise make the material available to any party or make the same available on any website, online service or bulletin board of your own or of any other party or make the same available in hard copy or in any other media without the website owner's express prior written consent. The website owner's copyright must remain on all reproductions of material taken from this website.

Floor Plans

Property Location

Marketed by John Francis - Lampeter



By submitting this form, you accept our Terms of Use.

Disclaimer Property descriptions and related information displayed on this page are marketing materials provided by John Francis - Lampeter. estateagents365.uk does not warrant or accept any responsibility for the accuracy or completeness of the property descriptions or related information provided here and they do not constitute property particulars. Please contact John Francis - Lampeter for full details and further information.