Semi-detached house for sale in Ilkeston DE7, 3 Bedroom

Ilkeston, Ilkeston, UK

Quick Summary

Property Type:
Semi-detached house
Status:
For sale
Price
£ 199,950
Beds:
3
Baths:
1
Recepts:
1
County
Derbyshire
Town
Ilkeston
Outcode
DE7
Location
New Street, Stanley, Ilkeston DE7
Marketed By:
Reeds Rains - Eastwood
Posted
2024-04-08
DE7 Rating:





More Info?
Please contact Reeds Rains - Eastwood on 01773 549046 or Request Details

Property Description



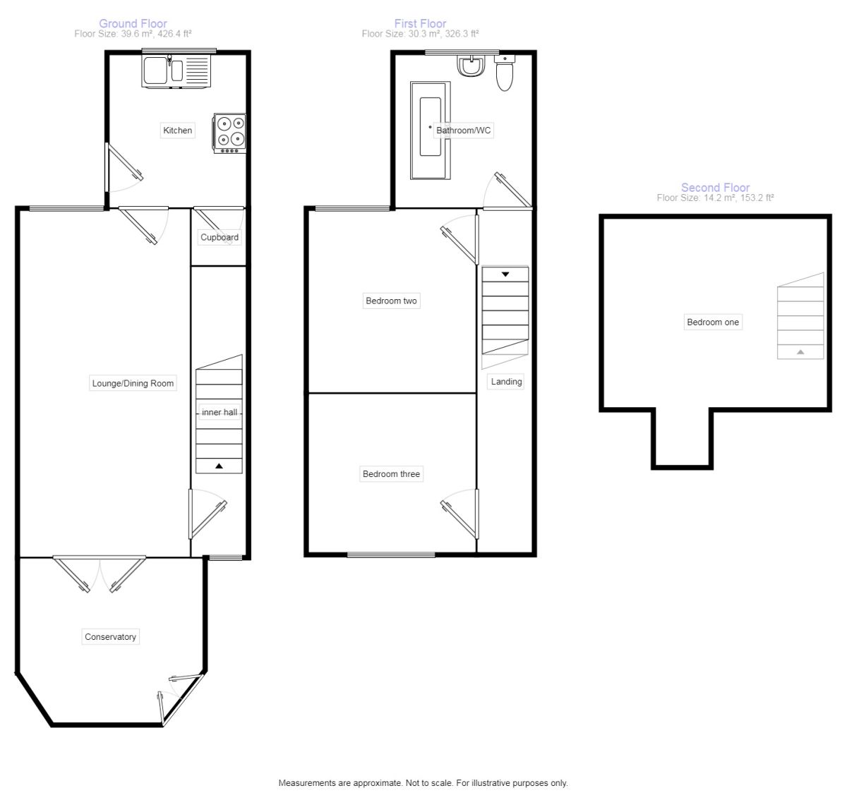
Conservatory ! Off street parking ! Village location ! Cul de sac ! And more in this three bedroom three storey end terraced House to which a viewing is recommended to appreciate the size and accommodation on offer. In brief the property comprises of, to the ground Floor a lounge/dining room, kitchen and conservatory whilst to the first floor there is a galleried landing with two bedrooms and bathroom whilst to the second Floor is the master Bedroom. To the outside there is a Low Maintenance Rear Garden with Off Street Parking and Front Section. The property also benefits from Double Glazing and Gas Central Heating. EPC Awaiting.

Lounge / Dining Room (6.07m x 4.01m)

With double glazed window to front and double doors leading to the conservatory. Feature brick fireplace with wood Flooring, beams to ceiling and radiator.

Kitchen (2.69m x 2.44m)

With double glazed window to front and entrance door. Range of wall and base units with worktops. Belfast style sink unit, plumbing for washing machine. Integrated appliances with quarry tiling to floor and under stairs pantry style cupboard.

Conservatory (2.92m x 3.23m)

With double glazed windows and double doors leading to rear garden with wood flooring.

Inner Hall

With double glazed window to rear, quarry tiling and stairs off.

Galleried Landing

With double glazed window to front and stairs off to second floor with radiator.

Bedroom (3.20m x 3.05m)

With double glazed window to rear, radiator and feature fireplace.

Bedroom (2nd) (2.57m x 3.28m)

With double glazed window to front and radiator.

Bathroom / WC (3.23m x 2.49m)

With double glazed window to front and side comprising of free standing bath with Claw Leg Feet, Low Level Wc and Wash Hand Basin. Heated towel rail with spotlights to ceiling, storage cupboard housing combination boiler and tiled flooring.

Bedroom (3rd) (3.35m x 4.78m)

With double glazed window to front, spotlights to ceiling with radiator.

Outside

Front Section

With patio area and wall boundaries.

Rear Garden

With low maintenance paving, mature shrubs.

Off Street Parking

Providing off street parking for several cars.

Important note to purchasers:

We endeavour to make our sales particulars accurate and reliable, however, they do not constitute or form part of an offer or any contract and none is to be relied upon as statements of representation or fact. Any services, systems and appliances listed in this specification have not been tested by us and no guarantee as to their operating ability or efficiency is given. All measurements have been taken as a guide to prospective buyers only, and are not precise. Please be advised that some of the particulars may be awaiting vendor approval. If you require clarification or further information on any points, please contact us, especially if you are traveling some distance to view. Fixtures and fittings other than those mentioned are to be agreed with the seller.

/8

Floor Plans

Property Location

Marketed by Reeds Rains - Eastwood



By submitting this form, you accept our Terms of Use.

Disclaimer Property descriptions and related information displayed on this page are marketing materials provided by Reeds Rains - Eastwood. estateagents365.uk does not warrant or accept any responsibility for the accuracy or completeness of the property descriptions or related information provided here and they do not constitute property particulars. Please contact Reeds Rains - Eastwood for full details and further information.