Semi-detached house for sale in Harrogate HG2, 4 Bedroom

Harrogate, Harrogate, UK

Quick Summary

Property Type:
Semi-detached house
Status:
For sale
Price
£ 315,000
Beds:
4
Baths:
1
Recepts:
2
County
North Yorkshire
Town
Harrogate
Outcode
HG2
Location
Forest Lane, Harrogate HG2
Marketed By:
Nicholls Tyreman
Posted
2024-05-08
HG2 Rating:





More Info?
Please contact Nicholls Tyreman on 01423 578928 or Request Details

Property Description

An extremely spacious, brick built, semi detached property located adjacent to open parkland and being within easy reach of the Starbeck High Street with its many shops, local schools and rail link for commuting to Leeds, Harrogate and York.

The property does now require general updating, but has the benefit of gas fired central heating and double glazing.

An internal inspection is required to appreciate the potential this property has to offer, with accommodation comprising: Entrance hall, living room, dining room, breakfast kitchen, four bedrooms, bathroom, separate wc and integral garage.

To the front of the property is a driveway, lawned gardens with flowering borders and mature boundary hedging. A side pathway leads to the rear of the property where there is a south facing garden with lawned area, flowering borders, garden shed and timber boundary fencing

A four bedroom semi detached property

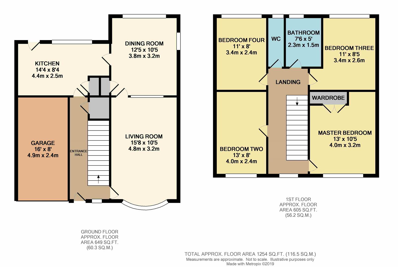
Ground Floor

Entrance Hall

Living Room (4.8 x 3.2 (15'8" x 10'5"))

Dining Room (3.8 x 3.2 (12'5" x 10'5"))

Kitchen (4.4 x 2.5 (14'5" x 8'2"))

First Floor

Landing

Master Bedroom (4.0 x 3.2 (13'1" x 10'5"))

Bedroom Two (4 x 2.4 (13'1" x 7'10"))

Bedroom Three (3.4 x 2.6 (11'1" x 8'6"))

Bedroom Four (3.4 x 2.4 (11'1" x 7'10"))

Bathroom (2.3 x 1.5 (7'6" x 4'11"))

Outside

To the front of the property is a driveway, lawned gardens with flowering borders and mature boundary hedging.

A side pathway leads to the rear of the property where there is a south facing garden with lawned area, flowering borders, garden shed and timber boundary fencing.

Directions

Directions - HG2 7HA
From Harrogate take Knaresborough Road A59 and continue through Starbeck High Street, leaving Starbeck turn right at the traffic lights into Forest Lane. The property is on the right.


Council tax


The property has been placed in band D.


Tenure


The tenure of the property is freehold.

Floor Plans

Property Location

Marketed by Nicholls Tyreman



By submitting this form, you accept our Terms of Use.

Disclaimer Property descriptions and related information displayed on this page are marketing materials provided by Nicholls Tyreman. estateagents365.uk does not warrant or accept any responsibility for the accuracy or completeness of the property descriptions or related information provided here and they do not constitute property particulars. Please contact Nicholls Tyreman for full details and further information.