Semi-detached house for sale in Glasgow G78, 3 Bedroom

Glasgow, Glasgow, UK

Quick Summary

Property Type:
Semi-detached house
Status:
For sale
Price
£ 135,000
Beds:
3
Baths:
1
County
Glasgow
Town
Glasgow
Outcode
G78
Location
Patterton Drive, Barrhead G78
Marketed By:
Barrhead Property Centre
Posted
2024-04-20
G78 Rating:





More Info?
Please contact Barrhead Property Centre on 0141 376 9571 or Request Details

Property Description

An extremely well-presented and well maintained semi detached villa which has been refurbished to a high standard by the current vendor. This superb family home offers spacious accommodation well placed for local schooling, shopping and public transport links. The accommodation comprises a welcoming reception hallway, spacious lounge, modern dining kitchen, three double bedrooms and a modern family bathroom. The property benefits from double glazing, gas central heating, driveway, two car garage and gardens to the front and rear. Further benefits include a floored and lined attic. Only on internal inspection can this stunning family home be fully appreciated. Early viewing is strongly recommended.

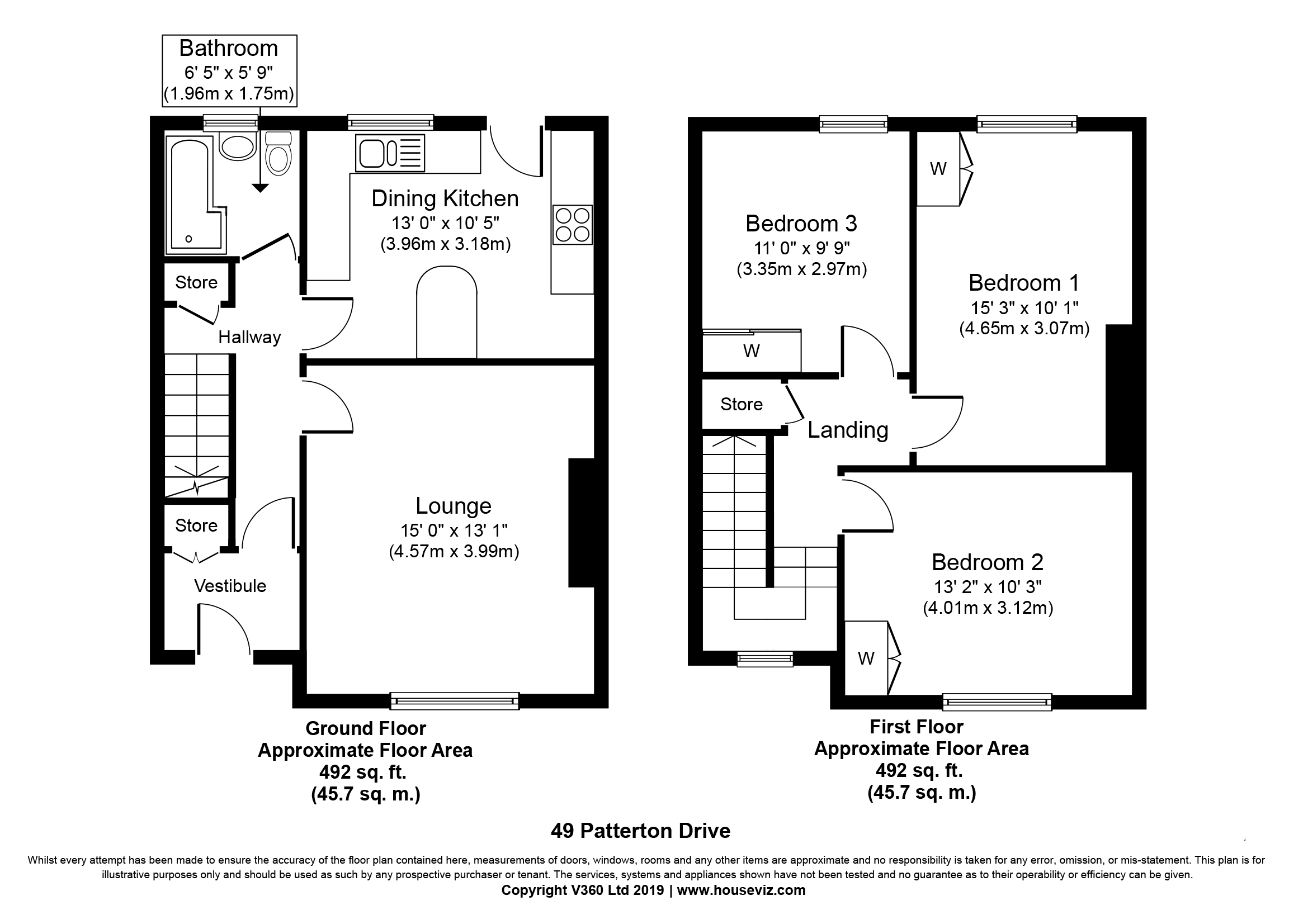
Room Dimensions

Lounge – 15`0 x 13`1
Dining Kitchen – 13`0 x 10`5
Bathroom – 6`5 x 5`9
Master Bedroom – 15`3 x 10`1
Bedroom Two – 13`2 x 10`3
Bedroom Three – 11`0 x 9`9

The above information is believed to be correct but does not form part of any contract or agreement. All measurements are maximum widths and lengths and include any recess.

** free mortgage advice **

To receive further advice on the most competitive mortgage product, please do not hesitate to contact our mortgage professionals Hugh Lynch or Ian Campbell to arrange a suitable appointment.

Your home may be repossessed if
you do not keep up repayments on
your mortgage.


Valuation of your own property


If you would like to know how much your own property would achieve in today’s market we are pleased to offer a free market appraisal with no obligation.


To view contact


Barrhead Property Centre
74 Cross Arthurlie Street
Barrhead
Glasgow
G78 1RP

T F

Floor Plans

Property Location

Marketed by Barrhead Property Centre


By submitting this form, you accept our Terms of Use.

Disclaimer Property descriptions and related information displayed on this page are marketing materials provided by Barrhead Property Centre. estateagents365.uk does not warrant or accept any responsibility for the accuracy or completeness of the property descriptions or related information provided here and they do not constitute property particulars. Please contact Barrhead Property Centre for full details and further information.