Semi-detached house for sale in Fleetwood FY7, 3 Bedroom

Fleetwood, Fleetwood, UK

Quick Summary

Property Type:
Semi-detached house
Status:
For sale
Price
£ 155,000
Beds:
3
Baths:
2
Recepts:
1
County
Lancashire
Town
Fleetwood
Outcode
FY7
Location
Voyager Close, Fleetwood FY7
Marketed By:
Reeds Rains
Posted
2019-01-21
FY7 Rating:





More Info?
Please contact Reeds Rains on 01772 913908 or Request Details

Property Description



**A home perfect for the first time buyer, on an estate which has everything you need on your doorstep.**

Situated on the ever so popular Harbour Village estate this true family home is perfect for the first time buyer or even the investor. Do not miss out on the opportunity to own a fantastic home without all the issues of buying brand new and that is tastefully decorated from top to bottom and has been cared for endlessly by a family that are only moving due to their need to up size. Three double bedrooms are on offer with the master boasting a three piece suite including a double shower cubicle whilst the ground floor briefly comprises of a lovely sized lounge, ground floor WC and then that room everyone wants....A open plan dining kitchen with patio doors on to a good sized sunny rear garden. A paved patio and lawned area are on offer here and are perfect for enjoying the last of the summer days and warm evenings. Whatever your preference is this estate has it all. A short walk away brings you to the a family pub with play area for the kids or just cross over the bridge and treat yourself to some retail therapy and a coffee at Freeport shopping Centre. Do you have a dog or just enjoy a lovely walk? Another bonus is the estuary less then a minutes walk where you can take a stroll and admire the views of Knott End and beyond. I cant recommend this estate enough with a community that really does look out for one another, peace of mind is something you cant usually buy. All the above is just a few reasons why I, myself choose to live on Harbour Village, take my advice as there is a reason properties like this sell quickly. Do not miss out on and call today for your viewing appointment.

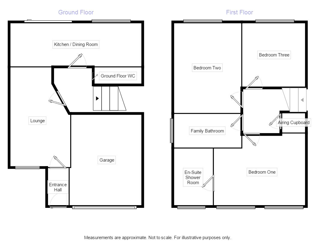
Entrance Hall

PVC door into hallway, radiator and ceiling light point.

Lounge (3.12m x 5.21m)

UPVC double glazed window to front, radiator, ceiling light point. Door into;

Inner Hall Way

Ceiling light point, tiled flooring, door into kitchen diner along with stairs to first floor.

Ground Floor WC

A two piece suite comprising of; Low flush WC and wash hand basin. Ceiling light point and tiled flooring.

Kitchen / Dining Room (5.69m x 2.54m)

A range of modern wall and base units with complimentary work surfaces over, stainless steel sink 1.5 bowl unit plus mixer tap and drainer, gas hob with electric oven below and extractor above, space for fridge freezer, plumbing for washing machine and dish washer, splash back tiling, tiled flooring and kick board spot lighting. Upvc doubled glazed window to rear with patio doors to the dining area opening onto the rear garden. TV point and two ceiling light points.

Stairs To First Floor

Ceiling light point, airing cupboard, access to the loft.

Bedroom 1 (2.92m x 4.19m)

Two Upvc double glazed windows to the front, modern fitted high gloss wardrobes and bedside cabinet, ceiling light point and radiator. Door into;

En-Suite Shower Room (1.37m x 2.03m)

A modern three piece suite comprising of; low flush WC, pedestal wash hand basin and tiled step in double shower cubicle with mains fed shower over. Upvc double glazed opaque window to front, extractor, lino flooring, radiator and ceiling light point.

Bedroom 2 (2.62m x 3.66m)

Upvc double glazed window to rear, radiator and ceiling light point.

Bedroom 3 (2.95m x 2.59m)

Upvc double glaze window to rear, ceiling light point and radiator.

Family Bathroom (2.59m x 1.68m)

A modern three piece suite comprising of; low flush WC, pedestal wash hand basin and panelled bath. Part tiled walls, lino flooring, radiator, extractor fan and Upvc double glazed opaque window to side.

Exterior

Extra paving added for ample parking for two cars along with access to the garage via up and over door. The rear garden can be access via the side of the house and is enclosed and boasts a paved patio area and a well kept lawn.

Important note to purchasers:

We endeavour to make our sales particulars accurate and reliable, however, they do not constitute or form part of an offer or any contract and none is to be relied upon as statements of representation or fact. Any services, systems and appliances listed in this specification have not been tested by us and no guarantee as to their operating ability or efficiency is given. All measurements have been taken as a guide to prospective buyers only, and are not precise. Please be advised that some of the particulars may be awaiting vendor approval. If you require clarification or further information on any points, please contact us, especially if you are traveling some distance to view. Fixtures and fittings other than those mentioned are to be agreed with the seller.

/8

Floor Plans

Property Location

Marketed by Reeds Rains



By submitting this form, you accept our Terms of Use.

Disclaimer Property descriptions and related information displayed on this page are marketing materials provided by Reeds Rains. estateagents365.uk does not warrant or accept any responsibility for the accuracy or completeness of the property descriptions or related information provided here and they do not constitute property particulars. Please contact Reeds Rains for full details and further information.