Semi-detached house for sale in Erith DA8, 2 Bedroom

Erith, Erith, UK

Quick Summary

Property Type:
Semi-detached house
Status:
For sale
Price
£ 299,000
Beds:
2
Baths:
1
Recepts:
1
County
Kent
Town
Erith
Outcode
DA8
Location
Drummond Close, Erith DA8
Marketed By:
Your Move
Posted
2018-10-28
DA8 Rating:





More Info?
Please contact Your Move on 01322 584699 or Request Details

Property Description



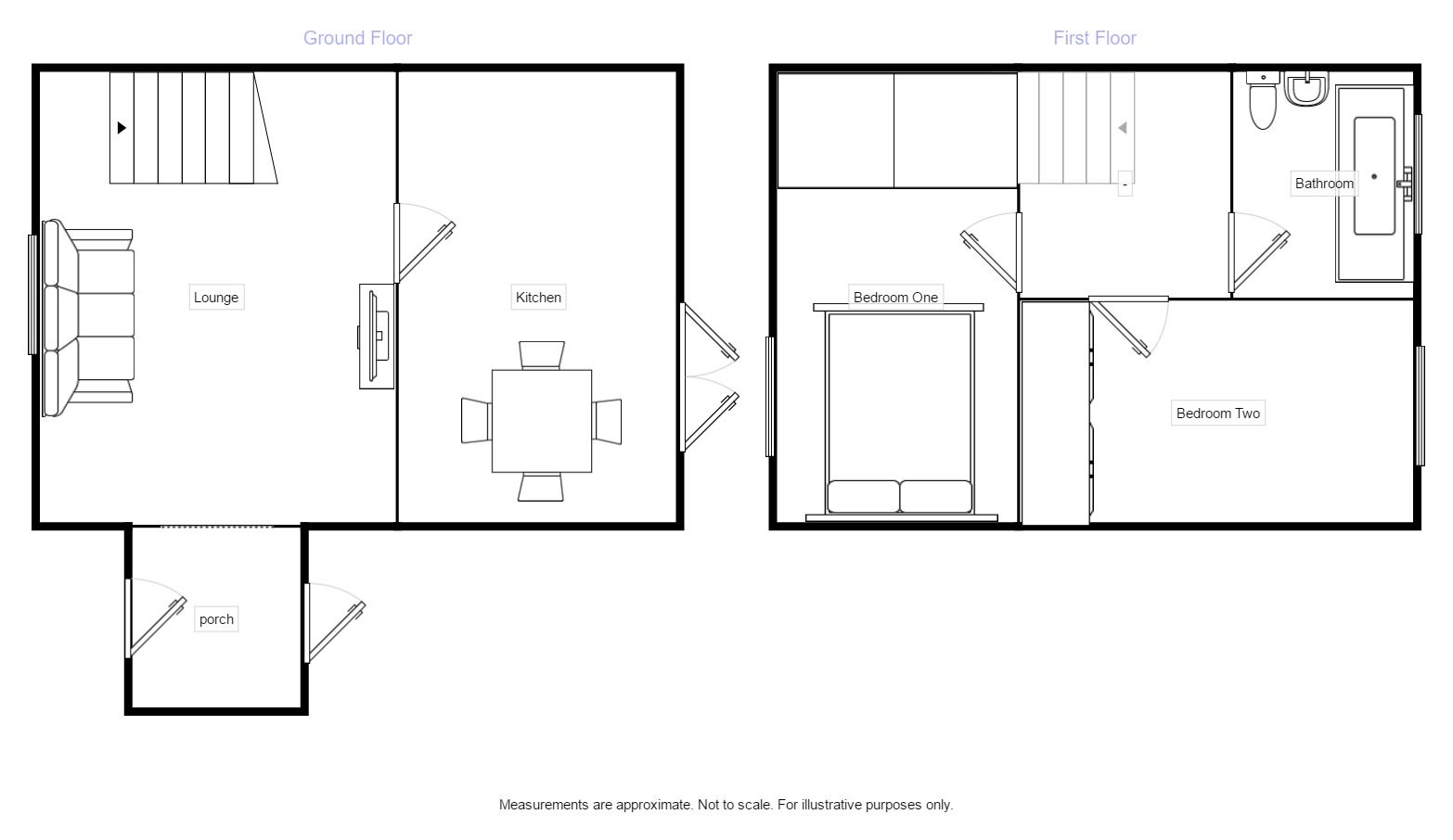
Do not miss out on this stunning semi-detached two bedroom property, comprised of a modern aesthetic and custom fitted units and cupboards, designed and fitted by the homeowner. Upon entering the property you will be greeted by a porch inspired room, allowing access to the living room and garden. The kitchen is spacious and can host a large amount of equipment and and even an dining table, without making comprising space. The bathroom is painted and tiled in a snowy white, leaving a vast amount of freedom to customize in any way you choose. The second bedroom can hold a double bed and has a built in wardrobe. Finally the master bedroom has a large window to let a large amount of natural light and is also comprised of a large fitted wardrobe which you are able to use as a walk in wardrobe.

Don't miss out, call us today to book a viewing!

Awaiting EPC Grade.

Location

The property is located in a cul de sac that is a short walk from a bus stop, giving you a direct route to Slade Green station, or Erith station. You will also have easy access to a large array of shops, whether that in Erith center, Northumberland Heath, Barnhurst or Bexley heath all within a 10 minute drive from one another.

Our View

This property is ideal for anyone looking to downsize or get their foot on the property ladder. The house is ready to move right into with no cosmetic work needed, The garden is great for children to play in, and you have access to it from the entrance of the property or the kitchen.

What are you waiting for? Call us today and book a Viewing!

Lounge (3.91m x 3.86m)

Kitchen / Dining Room (2.95m x 3.91m)

Bathroom (1.65m x 2.03m)

Bedroom 1 (2.95m x 3.25m)

Walk In Wardrobe

Bedroom 2 (2.97m x 1.93m)

Garden

Important note to purchasers:

We endeavour to make our sales particulars accurate and reliable, however, they do not constitute or form part of an offer or any contract and none is to be relied upon as statements of representation or fact. Any services, systems and appliances listed in this specification have not been tested by us and no guarantee as to their operating ability or efficiency is given. All measurements have been taken as a guide to prospective buyers only, and are not precise. Please be advised that some of the particulars may be awaiting vendor approval. If you require clarification or further information on any points, please contact us, especially if you are traveling some distance to view. Fixtures and fittings other than those mentioned are to be agreed with the seller.

/3

Floor Plans

Property Location

Marketed by Your Move



By submitting this form, you accept our Terms of Use.

Disclaimer Property descriptions and related information displayed on this page are marketing materials provided by Your Move. estateagents365.uk does not warrant or accept any responsibility for the accuracy or completeness of the property descriptions or related information provided here and they do not constitute property particulars. Please contact Your Move for full details and further information.