Semi-detached house for sale in Epsom KT19, 3 Bedroom

Epsom, Epsom, UK

Quick Summary

Property Type:
Semi-detached house
Status:
For sale
Price
£ 650,000
Beds:
3
Baths:
2
Recepts:
1
County
Surrey
Town
Epsom
Outcode
KT19
Location
Kingston Road, Stoneleigh KT19
Marketed By:
Foxtons - New Homes South West
Posted
2024-04-26
KT19 Rating:





More Info?
Please contact Foxtons - New Homes South West on 020 8022 0913 or Request Details

Property Description

Finished to an exceptional standard throughout, this amazing four bedroom house boasts a dual-aspect reception room, contemporary kitchen with space to dine and a private garden and off-street parking.

Excellently located for a number of nearby schools and moments from the varied amenities of both Ewell and Tolworth. Transport links include Stoneleigh Broadway and Tolworth mainline stations.

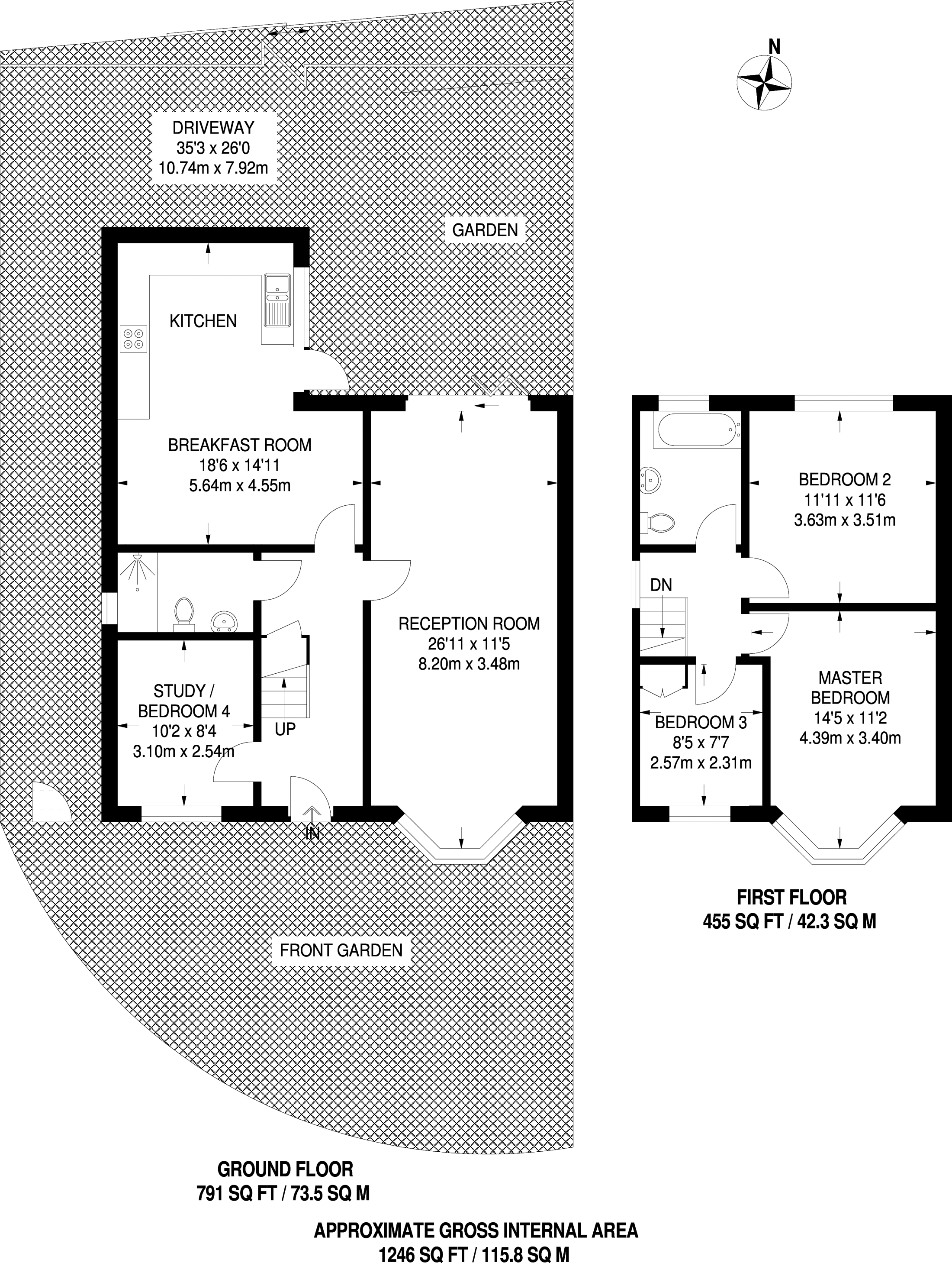
Floor Plans

Property Location

Marketed by Foxtons - New Homes South West


By submitting this form, you accept our Terms of Use.

Disclaimer Property descriptions and related information displayed on this page are marketing materials provided by Foxtons - New Homes South West. estateagents365.uk does not warrant or accept any responsibility for the accuracy or completeness of the property descriptions or related information provided here and they do not constitute property particulars. Please contact Foxtons - New Homes South West for full details and further information.