Semi-detached house for sale in Cheltenham GL54, 4 Bedroom

Cheltenham, Cheltenham, UK

Quick Summary

Property Type:
Semi-detached house
Status:
For sale
Price
£ 795,000
Beds:
4
Baths:
2
Recepts:
2
County
Gloucestershire
Town
Cheltenham
Outcode
GL54
Location
Rectory Barns, Lower Swell, Gloucestershire GL54
Marketed By:
Pritchard & Company
Posted
2024-04-30
GL54 Rating:





More Info?
Please contact Pritchard & Company on 01608 503951 or Request Details

Property Description

An edge of village barn conversion set in almost half an acre with lovely countryside views


The Old Dairy is a charming and spacious single storey barn conversion situated on the edge of Lower Swell, forming part of a select development of mainly period properties initially converted and enlarged in 1997 from a Cotswold farmstead.

The property is constructed of locally quarried Cotswold stone beneath a Welsh slate roof. It has an attractive arrangement of high ceilinged rooms taking advantage of the garden setting, and is approached over a private shared drive.

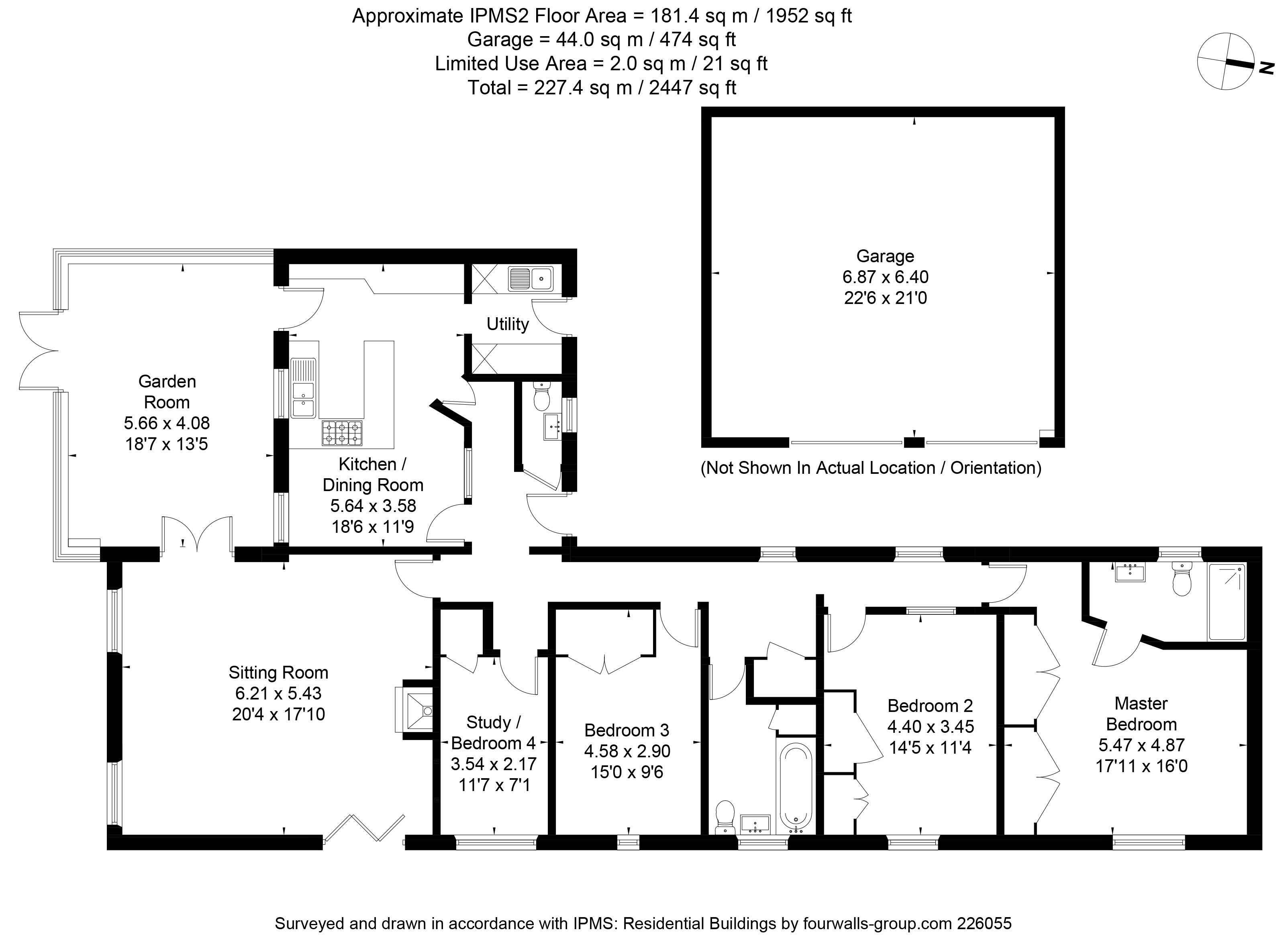
Internally there is an attractive hall with WC, a spacious double aspect sitting room with fireplace and wood burning stove, exposed full height roof trusses and bifold doors to a terrace. There is a sizeable garden room with doors to the sitting room, kitchen and garden. The kitchen is divided into two separate areas for dining and cooking and has a comprehensive range of cupboards and drawers, part granite work surfaces, integrated appliances, substantial ceilings and also leads to a utility. There are three double bedrooms, the master having an en suite shower room. In addition there is a spacious family bathroom and a useful fourth bedroom or study. On the north side of the property is an enclosed gravelled courtyard set behind wrought iron gates leading to a substantial double garage.

A particular feature of the property is the delightful gardens and grounds that extend to approximately half an acre in all. The garden is gently sloping, part walled, with mature trees and shrubs, a large expanse of lawn dissected by a beech hedge and terracing to take advantage of the fine uninterrupted rural views towards hillside in the direction of Stow on the Wold.

There is potential to extend and remodel parts of the property and detailed planning consent exists to carry out an attractive scheme of works. Application Ref: 16/01967/ful 2nd August 2016. Building regulations applied for.

The property is likely to appeal to a wide range of buyers including families, the early retired and as a second home.


Situation


The Old Dairy is situated in the desirable and picturesque village of Lower Swell which lies alongside the River Dikler in some of the country’s finest countryside. Centred around a tranquil village green with war memorial the village also has a parish church, well regarded primary school, active village hall and public house. The majority of buildings in Lower Swell are built in the mellow Cotswold stone in the vernacular style.

Just over one mile away, Stow on the Wold provides excellent facilities for day to day shopping, providing a supermarket, library, banks and a range of speciality shops. It is renowned for its antique shops, picturesque buildings and a wealth of historic interest. Further afield, the larger centres of Stratford upon Avon and Cheltenham offer a wider range of cultural and leisure facilities.

The surrounding countryside is particularly beautiful with traditional Cotswold villages, rural walks and interesting churches. There is a wealth of sporting and recreational facilities in the area.

Floor Plans

Property Location

Marketed by Pritchard & Company



By submitting this form, you accept our Terms of Use.

Disclaimer Property descriptions and related information displayed on this page are marketing materials provided by Pritchard & Company. estateagents365.uk does not warrant or accept any responsibility for the accuracy or completeness of the property descriptions or related information provided here and they do not constitute property particulars. Please contact Pritchard & Company for full details and further information.