Semi-detached house for sale in Cheltenham GL53, 3 Bedroom

Cheltenham, Cheltenham, UK

Quick Summary

Property Type:
Semi-detached house
Status:
For sale
Price
£ 369,950
Beds:
3
County
Gloucestershire
Town
Cheltenham
Outcode
GL53
Location
Bafford Approach, Charlton Kings, Cheltenham GL53
Marketed By:
Nick Griffith Estate Agents
Posted
2024-04-15
GL53 Rating:





More Info?
Please contact Nick Griffith Estate Agents on 01242 354168 or Request Details

Property Description

Key features:

  • Close to excellent schools
  • Entrance hall
  • Living/dining room
  • Kitchen
  • Family room/occasional bedroom
  • 3 bedrooms
  • Bath/shower room
  • Parking for 3 cars
  • South facing garden
  • Gated side access
  • Double glazing
  • Gas central heating


Main Description
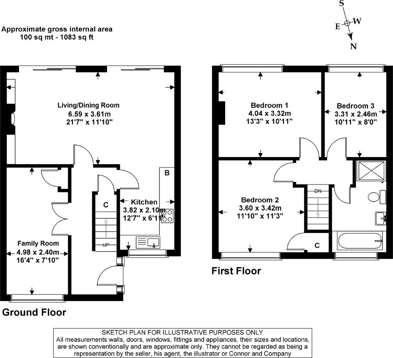
A traditional semi detached family house situated in this highly sought after residential location. The very well presented accommodation includes entrance hall, living/dining room with feature fireplace and 2 sets of sliding doors to the rear and a recently re-fitted kitchen which is open to the living/dining room. Also on the ground floor is the family room which could be used as an occasional bedroom. Upstairs there are 3 good size double bedrooms and a bathroom with walk in shower enclosure. Outside there is parking for 3 cars at the front, gated pedestrian side access and a lovely south facing garden with lawn and seating area.

Floor Plans

Property Location

Marketed by Nick Griffith Estate Agents


By submitting this form, you accept our Terms of Use.

Disclaimer Property descriptions and related information displayed on this page are marketing materials provided by Nick Griffith Estate Agents. estateagents365.uk does not warrant or accept any responsibility for the accuracy or completeness of the property descriptions or related information provided here and they do not constitute property particulars. Please contact Nick Griffith Estate Agents for full details and further information.