Semi-detached house for sale in Camberley GU16, 3 Bedroom

Camberley, Camberley, UK

Quick Summary

Property Type:
Semi-detached house
Status:
For sale
Price
£ 385,000
Beds:
3
Baths:
1
Recepts:
2
County
Surrey
Town
Camberley
Outcode
GU16
Location
Kingsmead, Frimley Green, Camberley GU16
Marketed By:
Hamiltons Property Services
Posted
2024-05-19
GU16 Rating:





More Info?
Please contact Hamiltons Property Services on 01276 980868 or Request Details

Property Description

**In Need Of Total Refurbishment**
A three bedroom semidetached property in need of total refurbishment, situated in a cul de sac in the village of Frimley Green with in walking distance of local schools, shops and pubs as well as being just a short distance from Basingstoke Canal and Frimley Lodge park.

The property has been extended to the ground floor and is offered for sale with no onward chain.

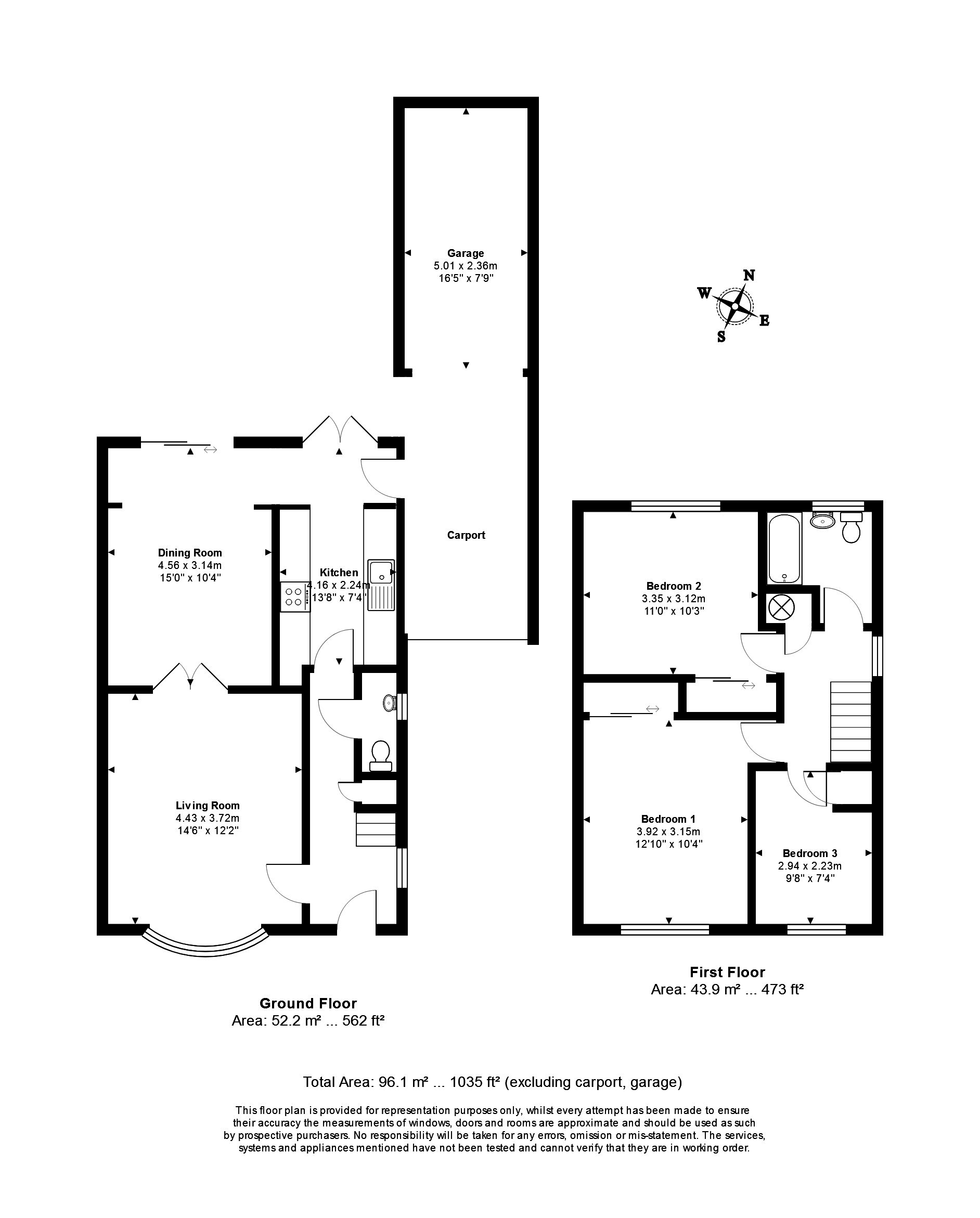
Floor Plans

Property Location

Marketed by Hamiltons Property Services


By submitting this form, you accept our Terms of Use.

Disclaimer Property descriptions and related information displayed on this page are marketing materials provided by Hamiltons Property Services. estateagents365.uk does not warrant or accept any responsibility for the accuracy or completeness of the property descriptions or related information provided here and they do not constitute property particulars. Please contact Hamiltons Property Services for full details and further information.