Semi-detached bungalow for sale in Haddington EH41, 1 Bedroom

Haddington, Haddington, UK

Quick Summary

Property Type:
Semi-detached bungalow
Status:
For sale
Price
£ 130,000
Beds:
1
Baths:
1
Recepts:
1
County
East Lothian
Town
Haddington
Outcode
EH41
Location
Davidson Terrace, Haddington EH41
Marketed By:
Forsyth Solicitors
Posted
2019-04-29
EH41 Rating:





More Info?
Please contact Forsyth Solicitors on 01620 567967 or Request Details

Property Description

** under offer ** Forsyth Solicitors are delighted to bring to the market this one bedroom bungalow modernised to the highest standard which is located in a highly sought after residential area close to the Town Centre. This property is in walk in condition and would be ideal for those looking to downsize or requiring one level living accommodation.The property benefits from double glazing and gas central heating. There are gardens to the front and side and a private garden to the rear with beautiful paved patio.There is ample on street parking to the front of the property. Home Report Valuation £135,000.

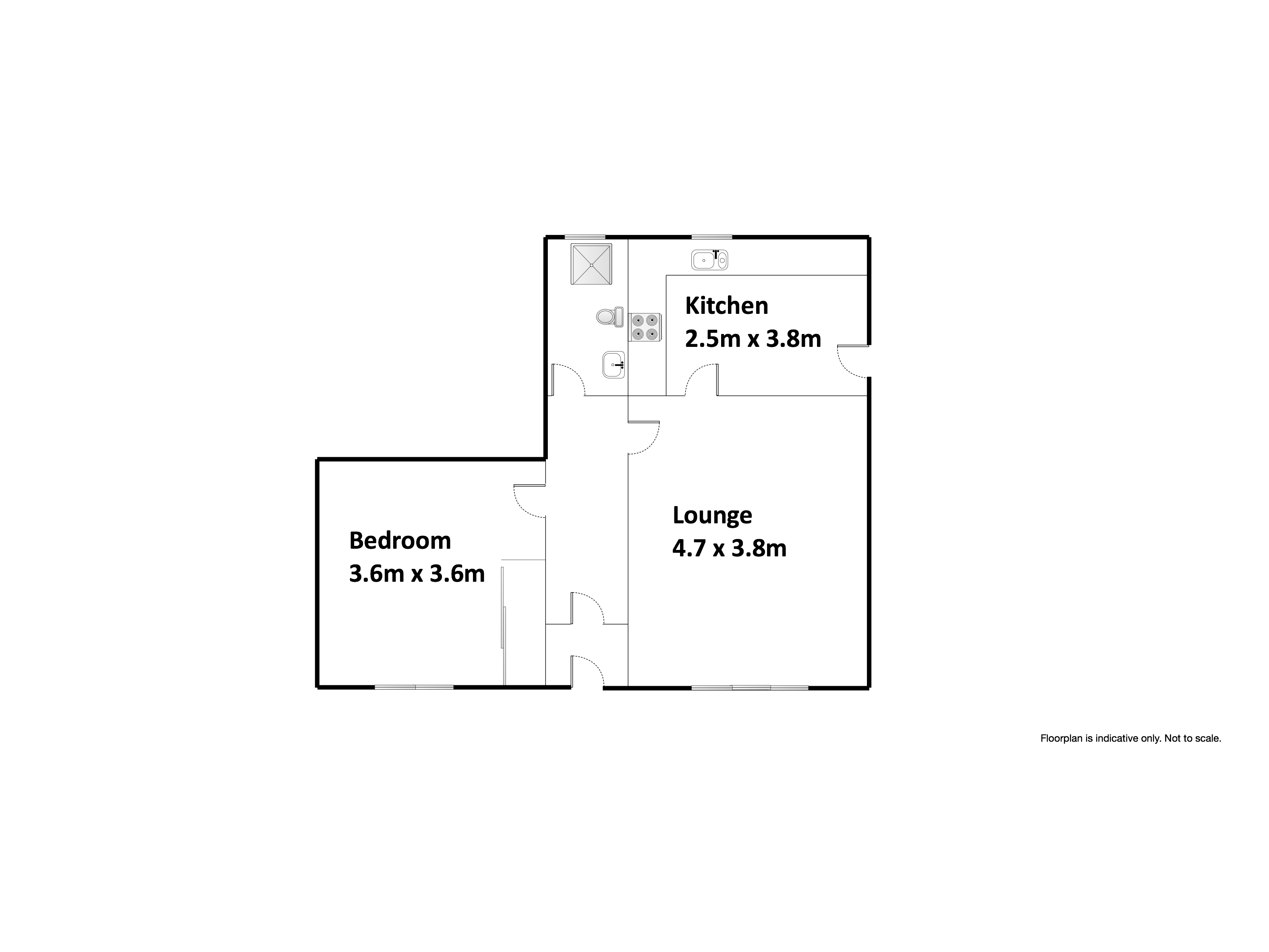
Hall
The airy porch, opens through a partially glazed door into the hallway The hall gives access to the lounge, bedroom and the shower room.

Lounge
4.70 m x 3.80 m / 15'5" x 12'6"
Good sized room with south facing bay window. Attractive fire surround with electric living flame fire. Door into kitchen.

Kitchen
2.50 m x 3.80 m / 8'2" x 12'6"
With wall and base units and stainless steel sink with mixer tap. Extractor fan, gas hob and oven. Washing machine and fridge. North facing window. Door to rear garden.

Bedroom
3.60 m x 3.60 m / 11'10" x 11'10"
Double bedroom with south facing window. Fitted wardrobe.

Shower Room
Configured as a wet-room. With shower, wc and basin. North facing window.

Attic
The attic is floored, carpeted, insulated and plastered to the highest standard. There is a single velux window. Configured as one large room and a smaller storeroom. Central heating boiler.

Outside
There are low maintenance gardens to the front and side and a private garden to the rear with beautiful sunny paved patio.Garden shed. High timber fences to back and rear.

Floor Plans

Property Location

Marketed by Forsyth Solicitors


By submitting this form, you accept our Terms of Use.

Disclaimer Property descriptions and related information displayed on this page are marketing materials provided by Forsyth Solicitors. estateagents365.uk does not warrant or accept any responsibility for the accuracy or completeness of the property descriptions or related information provided here and they do not constitute property particulars. Please contact Forsyth Solicitors for full details and further information.