Retail premises for sale in Leicester LE2, 4 Bedroom

Leicester, Leicester, UK

Quick Summary

Property Type:
Retail premises
Status:
For sale
Price
£ 285,000
Beds:
4
Baths:
3
County
Leicestershire
Town
Leicester
Outcode
LE2
Location
Maidstone Road, Leicester, Leicestershire LE2
Marketed By:
Online estate agents.com
Posted
2024-05-13
LE2 Rating:





More Info?
Please contact Online estate agents.com on 0116 484 9816 or Request Details

Property Description

Property Description

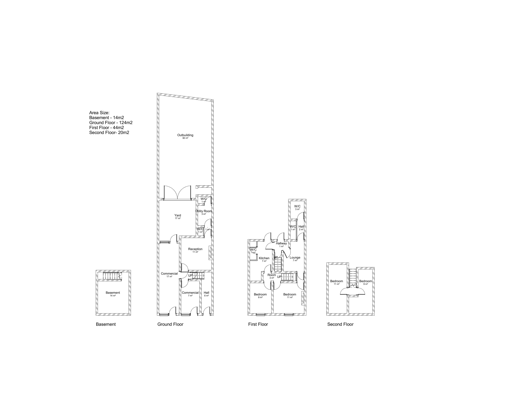
We are pleased to offer to the market, a rare mixed use property located at 177 Maidstone Road near ring-roads, Leicester.The property comprises twolock up retail units (including a shower and w/c, basement with drainage) on the ground floor plusa four bedroom, 2 bathroom flat on the upperfloors, (previously twoflats, which can easily be reverted.)To the front of the property, there are full double doors which leadto the rear covered yard (7-8 cars) thatbenefiis from floor drainage and connections for w/c. Propertycan be used for a variety of uses stpp. (both 177 and next door 179 are for sale either separately or collectively)Located 3 doors away from a playground, mosque, church andschool;walking distance from shops, retail park, train station (11mins walk)and Leicester City Centre.

Floor Plans

Property Location

Marketed by Online estate agents.com


By submitting this form, you accept our Terms of Use.

Disclaimer Property descriptions and related information displayed on this page are marketing materials provided by Online estate agents.com. estateagents365.uk does not warrant or accept any responsibility for the accuracy or completeness of the property descriptions or related information provided here and they do not constitute property particulars. Please contact Online estate agents.com for full details and further information.