Maisonette to rent in Woking GU21, 2 Bedroom

Woking, Woking, UK

Quick Summary

Property Type:
Maisonette
Status:
To rent
Price
£ 300
Beds:
2
Baths:
2
Recepts:
1
County
Surrey
Town
Woking
Outcode
GU21
Location
Walton, Woking GU21
Marketed By:
Brookwood Lettings
Posted
2019-05-05
GU21 Rating:





More Info?
Please contact Brookwood Lettings on 01932 688877 or Request Details

Property Description

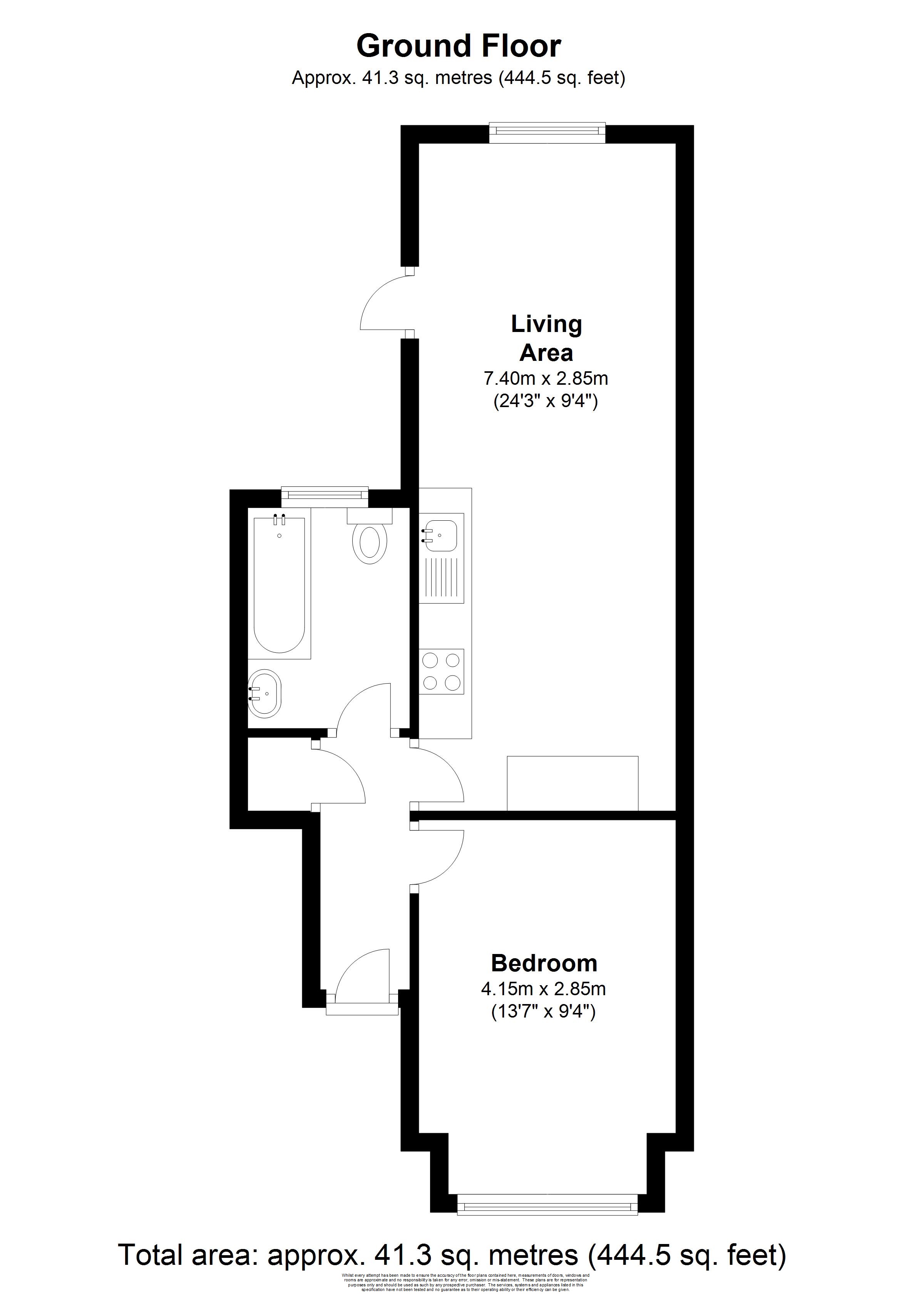
Unfurnished two bedroom two bathroom maisonette set on two floors. The first floor offers open plan kitchen living room, bedroom 1 & bathroom with power shower. Second floor offers bedroom 2 with en-suite walk in shower.

This property also comes with two private parking spaces. Located only 5 minutes walking distance to Woking Town centre, Train Station & local shops.

Floor Plans

Property Location

Marketed by Brookwood Lettings


By submitting this form, you accept our Terms of Use.

Disclaimer Property descriptions and related information displayed on this page are marketing materials provided by Brookwood Lettings. estateagents365.uk does not warrant or accept any responsibility for the accuracy or completeness of the property descriptions or related information provided here and they do not constitute property particulars. Please contact Brookwood Lettings for full details and further information.