Maisonette to rent in London SW13, 3 Bedroom

London, London, UK

Quick Summary

Property Type:
Maisonette
Status:
To rent
Price
£ 750
Beds:
3
Baths:
3
Recepts:
1
County
London
Town
London
Outcode
SW13
Location
Cleveland Gardens, Barnes, London SW13
Marketed By:
Chestertons - Barnes Village
Posted
2018-10-22
SW13 Rating:





More Info?
Please contact Chestertons - Barnes Village on 020 8115 2487 or Request Details

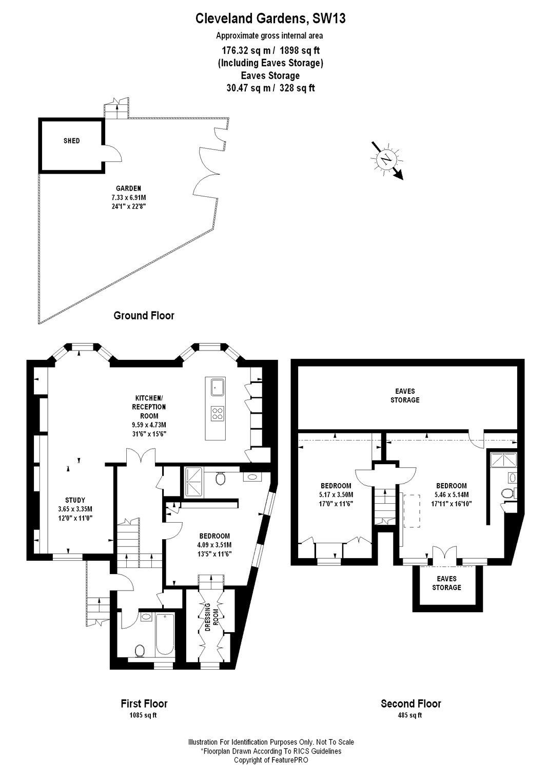
Property Description

A generous split-level flat occupying the first and second floors of this attractive period property in the heart of Barnes Village. The property boasts a private entrance, a south west facing garden and ample storage throughout.

On the first floor, there is a full-width open-plan reception room, kitchen, dining room and study which benefits from two bay windows. A wide hallway leads to a modern bathroom and a large bedroom suite with an en-suite shower room and a dressing room.

The second floor provides a second en-suite bedroom which has access to vast eaves storage on either side and a third double bedroom with fitted wardrobes.

Cleveland Gardens is located close to Barnes Pond and the amenities of Barnes High Street. Barnes Bridge Station is nearby and provides a frequent service into London Waterloo. Bus routes run regularly from Barnes to Hammersmith which offers underground and further bus networks into central London. Renowned schools in the area include St Paul's School, The Harrodian, The Swedish School, St Osmunds' and Barnes Primary School.

Floor Plans

Property Location

Marketed by Chestertons - Barnes Village


By submitting this form, you accept our Terms of Use.

Disclaimer Property descriptions and related information displayed on this page are marketing materials provided by Chestertons - Barnes Village. estateagents365.uk does not warrant or accept any responsibility for the accuracy or completeness of the property descriptions or related information provided here and they do not constitute property particulars. Please contact Chestertons - Barnes Village for full details and further information.