Maisonette to rent in London N19, 3 Bedroom

London, London, UK

Quick Summary

Property Type:
Maisonette
Status:
To rent
Price
£ 531
Beds:
3
Baths:
1
Recepts:
1
County
London
Town
London
Outcode
N19
Location
Hatchard Road, London N19
Marketed By:
JTM Homes - Archway
Posted
2018-09-12
N19 Rating:





More Info?
Please contact JTM Homes - Archway on 020 3544 7189 or Request Details

Property Description

**newly refurbished** This stunning three bedroom maisonette boasts three double bedrooms with built-in wardrobes, a large reception room, modern kitchen leading to the private garden, luxury bathroom/WC with a walk in shower and a private roof terrace. Available to rent now, this property has been finished to an extremely high standard throughout and is offered on a furnished basis. The property is only a short distance from Archway Station (Northern Line - Zone 2) or Upper Holloway Station (Overground).

Admin fee = £138.00 Per Tenant + £39.00 Per Guarantor (if required) / If the Landlord chooses to have a professional Inventory, a check-fee will be applicable (price varies depending on the size of the property).

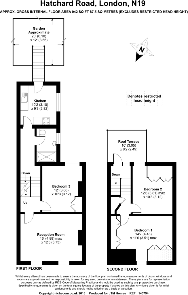
Reception room: 16' 0" x 12' 3" (4.88m x 3.73m)

kitchen: 10' 2" x 9' 3" (3.1m x 2.82m)

bedroom 1: 14' 7" x 11' 6" (4.44m x 3.51m)

bedroom 2: 12' 6" x 10' 3" (3.81m x 3.12m)

bedroom 3: 12' 0" x 10' 3" (3.66m x 3.12m)

roof terrace: 10' 0" x 8' 2" (3.05m x 2.49m)

garden: 20' 0" x 12' 0" (6.1m x 3.66m)

Floor Plans

Property Location

Marketed by JTM Homes - Archway


By submitting this form, you accept our Terms of Use.

Disclaimer Property descriptions and related information displayed on this page are marketing materials provided by JTM Homes - Archway. estateagents365.uk does not warrant or accept any responsibility for the accuracy or completeness of the property descriptions or related information provided here and they do not constitute property particulars. Please contact JTM Homes - Archway for full details and further information.