Maisonette for sale in Twickenham TW1, 2 Bedroom

Twickenham, Twickenham, UK

Quick Summary

Property Type:
Maisonette
Status:
For sale
Price
£ 675,000
Beds:
2
Baths:
1
Recepts:
2
County
London
Town
Twickenham
Outcode
TW1
Location
Moor Mead Road, St Margarets, Twickenham TW1
Marketed By:
Chase Buchanan, St Margarets
Posted
2024-04-24
TW1 Rating:





More Info?
Please contact Chase Buchanan, St Margarets on 020 3463 9306 or Request Details

Property Description

A prime example of a fantastic triple aspect corner maisonette with two double bedrooms, overlooking Moor Mead Park. It is ideally located in the heart of St Margarets village, with its close proximity to St Margarets and Twickenham mainline station's, the residence is seen to be in an enviable position.

The property offers generous accommodation to the first floor comprising; a bright and spacious full width reception room leading to a pretty private balcony offering park views. Two double bedrooms, the master bedroom benefits from a charming feature fireplace and built in wardrobes. To the rear is an open plan kitchen/diner with an abundance of natural light as well as a modern bathroom.

The property further boasts access to the low maintenance rear garden, long lease, chain free and potential to extend further into the loft.

An appointment to view is highly recommended via the vendors' sole agents.

EPC rating E

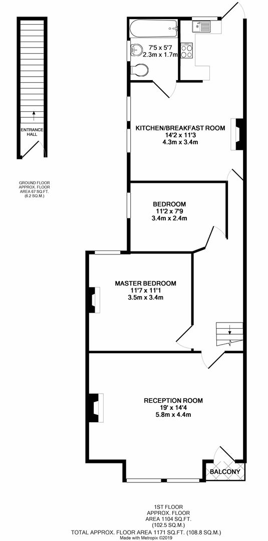
Floor Plans

Property Location

Marketed by Chase Buchanan, St Margarets


By submitting this form, you accept our Terms of Use.

Disclaimer Property descriptions and related information displayed on this page are marketing materials provided by Chase Buchanan, St Margarets. estateagents365.uk does not warrant or accept any responsibility for the accuracy or completeness of the property descriptions or related information provided here and they do not constitute property particulars. Please contact Chase Buchanan, St Margarets for full details and further information.