Maisonette for sale in Southall UB2, 2 Bedroom

Southall, Southall, UK

Quick Summary

Property Type:
Maisonette
Status:
For sale
Price
£ 295,000
Beds:
2
Baths:
1
Recepts:
1
County
London
Town
Southall
Outcode
UB2
Location
North Hyde Lane, Heston, Hounslow UB2
Marketed By:
Blue Estate Agents
Posted
2018-12-16
UB2 Rating:





More Info?
Please contact Blue Estate Agents on 020 7768 6420 or Request Details

Property Description

A must see property?Contact A Dedicated Member Of Staff Today To Book Your Appointment. Immaculate In Every Direction. Blue estate agents offer to the market this awesome two bedroom ground floor maisonette located in a great location in Southall.

This beautiful property has been finished to a good standard. Property offers a large reception room fitted leading to a good size kitchen with plenty of space for white good appliances. Two good size bedrooms and a family bathroom suite. The whole property is double glazed and gas central heated.

Location the property is set just of Western Road in Southall, Featherstone Primary and High School and also Southall Station (Crossrail) and not too far from Heston and Hayes giving access to M4, M25 and A40. The property has great links to public transport giving access to many bus links and low service and maintenance charges and a private rear garden with side the front of the property you have off street parking for two cars.

Long Lease & £10 ground rent per annum.

The property is located within a close proximity of Norwood Green Primary School and Featherstone High School. This is a must see property. Viewings are highly recommended - Call us today on to book in your appointment on !

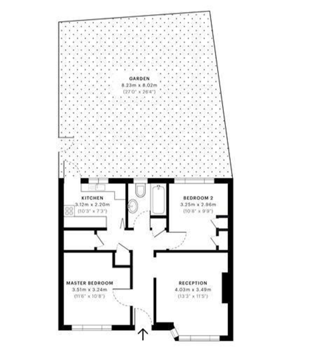
Floor Plans

Property Location

Marketed by Blue Estate Agents


By submitting this form, you accept our Terms of Use.

Disclaimer Property descriptions and related information displayed on this page are marketing materials provided by Blue Estate Agents. estateagents365.uk does not warrant or accept any responsibility for the accuracy or completeness of the property descriptions or related information provided here and they do not constitute property particulars. Please contact Blue Estate Agents for full details and further information.