Maisonette for sale in London N7, 2 Bedroom

London, London, UK

Quick Summary

Property Type:
Maisonette
Status:
For sale
Price
£ 900,000
Beds:
2
Baths:
2
Recepts:
1
County
London
Town
London
Outcode
N7
Location
Bryantwood Road, London N7
Marketed By:
Hamptons International - Islington Sales
Posted
2024-04-02
N7 Rating:





More Info?
Please contact Hamptons International - Islington Sales on 020 3589 0856 or Request Details

Property Description

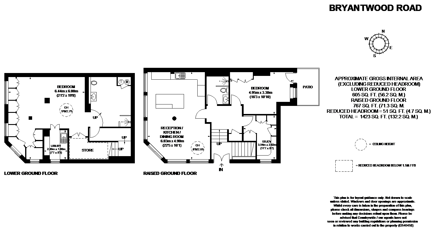
A stunning and highly unusual 1423 sq ft split-level apartment with two bedrooms positioned over the raised and lower ground floors of a pub conversion. The property has been lovingly renovated with acute attention to detail giving the property its own unique feel. On the raised ground floor is a glorious 22'5 x 16'1 open-plan reception room with a contemporary kitchen, a double bedroom, a study, a patio and a shower room. On the lower ground floor is a vast 21'2 x 19'8 master bedroom with as much wardrobe space that you could wish for, a large family bathroom, a utility room and also a separate store room. This beautiful and charming space is available with no onwards chain.

Situation
Bryantwood Road is close to the open spaces of Highbury Fields and all the amenities offered on nearby Upper Street, Holloway Road, Drayton Park and Highbury Barn. Drayton Park Station (National Rail) is moments from the property (with access to Moorgate in the City) as are and Highbury & Islington Station (Victoria Line and London Overground) and Holloway Road Station (Piccadilly Line).

Floor Plans

Property Location

Marketed by Hamptons International - Islington Sales


By submitting this form, you accept our Terms of Use.

Disclaimer Property descriptions and related information displayed on this page are marketing materials provided by Hamptons International - Islington Sales. estateagents365.uk does not warrant or accept any responsibility for the accuracy or completeness of the property descriptions or related information provided here and they do not constitute property particulars. Please contact Hamptons International - Islington Sales for full details and further information.