Maisonette for sale in London E1, 3 Bedroom

London, London, UK

Quick Summary

Property Type:
Maisonette
Status:
For sale
Price
£ 1,095,000
Beds:
3
Baths:
2
Recepts:
1
County
London
Town
London
Outcode
E1
Location
Wentworth Street, London E1
Marketed By:
NDLDN
Posted
2024-04-13
E1 Rating:





More Info?
Please contact NDLDN on 020 8115 0664 or Request Details

Property Description

London Square Spitalfields has a collection stylish one, two and three bedroom apartments set around the beautifully landscaped grounds of Mallon Gardens and beautiful Grade II listed Toynbee Hall. Intelligently designed and well-appointed, the apartments benefit from outdoor space in the form of terraces, balconies or winter gardens and come complete with daily concierge services.

Perfectly situated on Commercial Street in sight of the Gherkin and with easy access to the best that the City and London’s vibrant East End has to offer, London Square Spitalfields enjoys outstanding onward transport links from both Aldgate East and Liverpool Street.

When you live right in the heart of the City, nothing is far from your front door. So whether travelling for business or pleasure, London Square Spitalfields couldn’t be better located, providing easy access to the City, the West End and the transport hubs of Victoria, Waterloo and Paddington in less than 20 minutes.

Photographs may depict general images of the development and may not show the actual apartment for sale.


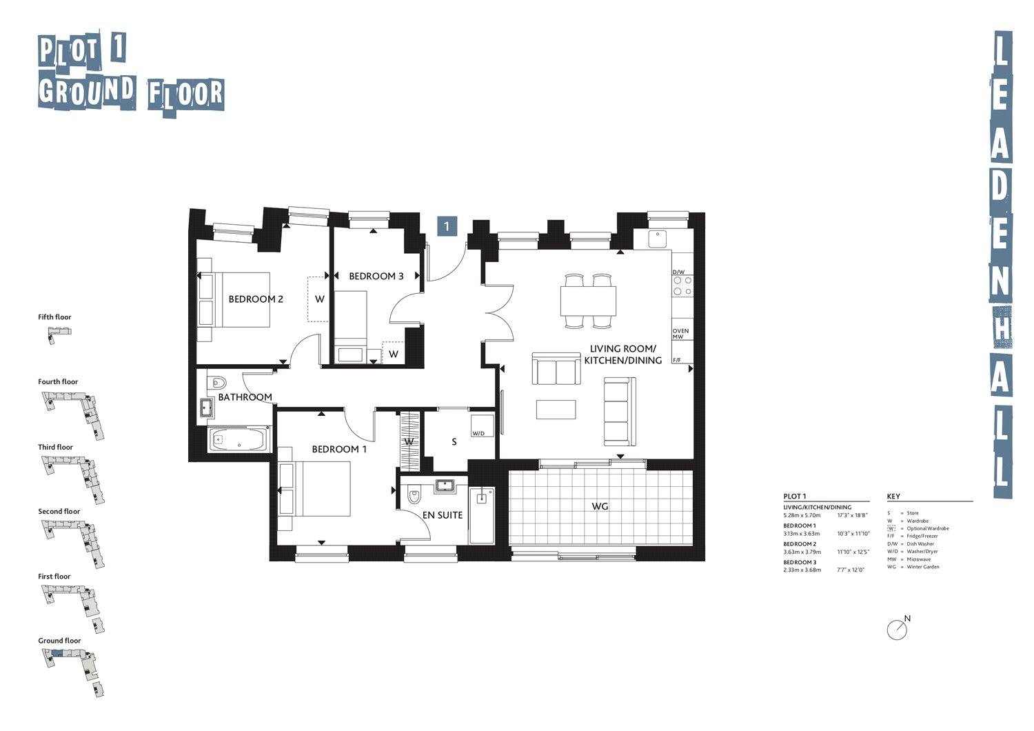
Floor Plans

Property Location

Marketed by NDLDN


By submitting this form, you accept our Terms of Use.

Disclaimer Property descriptions and related information displayed on this page are marketing materials provided by NDLDN. estateagents365.uk does not warrant or accept any responsibility for the accuracy or completeness of the property descriptions or related information provided here and they do not constitute property particulars. Please contact NDLDN for full details and further information.