Land for sale in Wemyss Bay PA18, 5 Bedroom

Wemyss Bay, Wemyss Bay, UK

Quick Summary

Property Type:
Land
Status:
For sale
Price
£ 95,000
Beds:
5
Baths:
3
Recepts:
2
County
Inverclyde
Town
Wemyss Bay
Outcode
PA18
Location
Seacrest, Cliff Terrace Road, Wemyss Bay PA18
Marketed By:
Donald Ross Estate Agents Ltd
Posted
2019-01-06
PA18 Rating:





More Info?
Please contact Donald Ross Estate Agents Ltd on 01292 373953 or Request Details

Property Description

A wonderful opportunity to purchase a truly exceptional detached four bedroom oak frame house. The building of the property will be in partnership with oak construction specialists Hendry Developments Ltd and Oakwrights Ltd Scotland.

External House specification

• Front/West Elevation-Gables K Rend Polarwhite, Composite Grey Lining, Glazed Gable, Feature Entrance Canopy. Dormer and Velux

• Rear/East Elevation-Render, Composite Grey Lining. Glazed Panels Double Doors

• Side/North Elevation- Render, Composite Grey Lining, Brick Feature Chimney

• Side/South Elevation-Render, Composite Grey Lining

• Integral Garage to be confirmed.

• Composite Grey facia and bargeboard

• Roof Finish Spanish Slate with Dark grey ridge

• Finished chip cotters gold or similar down into house and garage if applicable with 5x2 timber edging (from neck of entrance drive) per site plan

• Entrance drive scraped and tidied (type 1), terram and cotters gold chip

• Indian sandstone path around 1200 x 300 chipped border, scraped, around perimeter of house tidy for rotervation at lawn areas

Internals House Specification

• Contemporary Green Oak, Post and Beam Frame per attached Oakwrights Design

• Study area

• Natural Gas Sedbuk A rated Boiler

• Myson under floor or similar equal and approved to ground floor, Compact K 2 radiators to upper floor

• Heated towel rails in w/c bathrooms (electric)

• 1st floor prepared ready for carpet

• £15,000 sum allowed Hendry Developments Ltd cost for quality kitchen furniture

• Drench showers Jasper Morrison or similar ware £6,000 sum allowed Hendry Developments Ltd cost for ensuite/bathrooms

• Bathrooms: Travertine or similar, floors and shower cubicles fully finished in crisp white wall board

• Kitchen/dining/family/utility/shower/hallway travertine tile or similar on floors

• Engineered Oak through master bedroom and bedroom 4/snug

• White finished skirting/architraves 120mm 90mm respectively

• Brushed aluminium ironmongery

• Choice of doors Oak finished or similar

• Staircase Oak finish with square spindles, base and handrail

• Anthracite pvcu product for windows and doors double glazed

• Stoves-one for living room area Charnwood C4 or similar £3000 allowed by Hendry Developments Ltd cost

• Black pvcu gutters/downpipes

• All walls Natural Calico three coats Ceilings White

• Oak two coats matt varnish

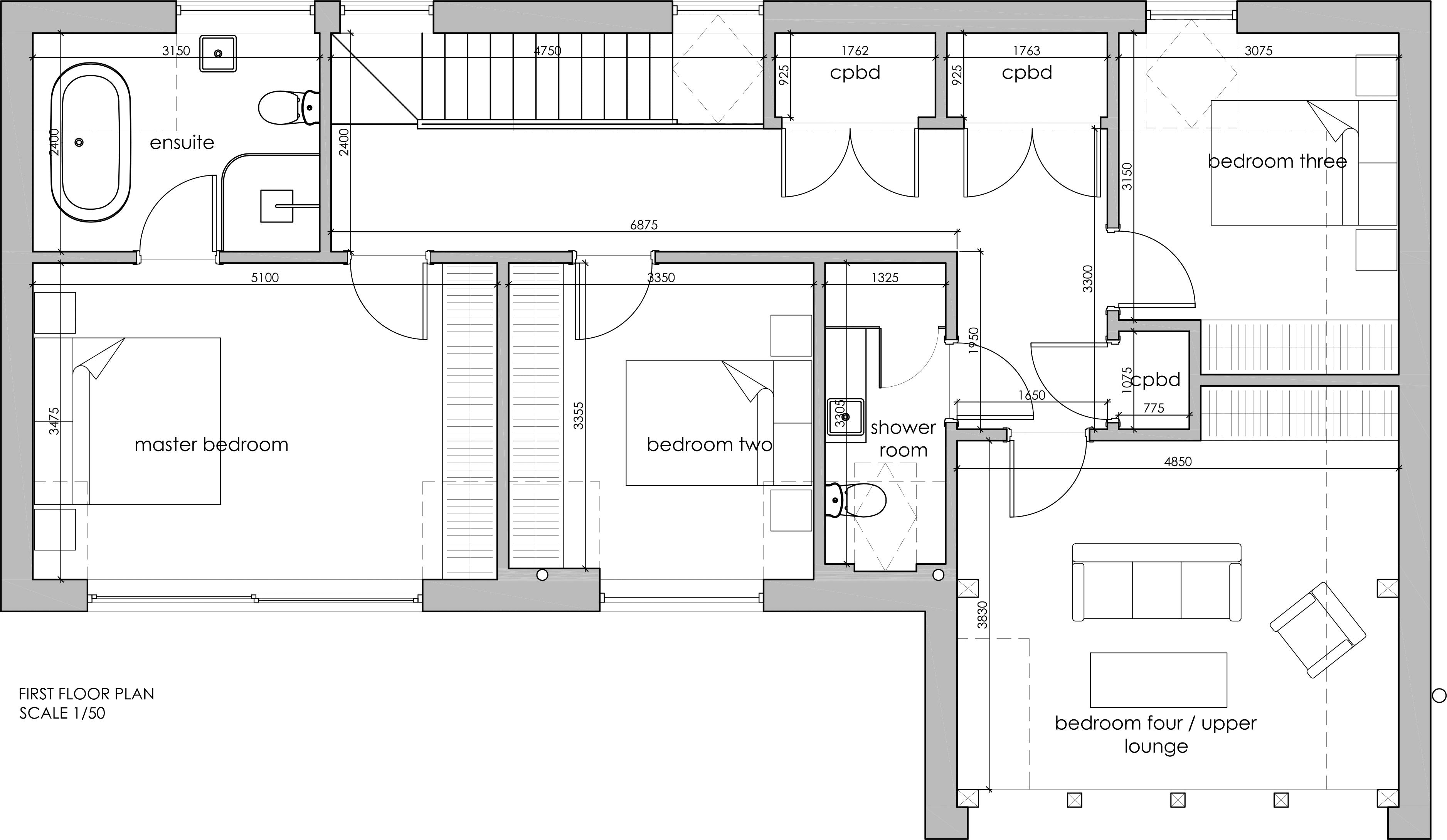
Ground Floor

Entrance Hall 2.5m x 2.7m

Lounge 2.4m x 4.8m

Open Plan Kitchen & Dining room 6.8m x 6m

Utility 2.1m x 3.2m

Study 3m x 3.3m

Shower room 2.1m x 2.5m

First Floor

Master Bedroom 3.4m x 5.1m

En-suite 2.4m x 3.1m

Bedroom 2 3.3m x 3.3m

Bedroom 3 3.1m x 3m

Bedroom 4/Upper Lounge 3.8m x 4.8m

Shower room 1.3m 3.2m

Land and Buildings Transaction Tax exemption

For the purchase of a property of £495,000

Land purchase £100,000

(there is no LBTT as the £0 to £145,000 = 0%)

The reaming sum of £395,000 is a build contract which covers the cost of the build not the house purchase.

The normal purchase price of a property of £495,000 is £22,800

For further information please visit

Floor Plans

Property Location

Marketed by Donald Ross Estate Agents Ltd



By submitting this form, you accept our Terms of Use.

Disclaimer Property descriptions and related information displayed on this page are marketing materials provided by Donald Ross Estate Agents Ltd. estateagents365.uk does not warrant or accept any responsibility for the accuracy or completeness of the property descriptions or related information provided here and they do not constitute property particulars. Please contact Donald Ross Estate Agents Ltd for full details and further information.