Land for sale in Cheltenham GL53, 0 Bedroom

Cheltenham, Cheltenham, UK

Quick Summary

Property Type:
Land
Status:
For sale
Price
£ 750,000
Beds:
0
County
Gloucestershire
Town
Cheltenham
Outcode
GL53
Location
Charlton Close, Charlton Kings, Cheltenham GL53
Marketed By:
Charles Lear
Posted
2019-05-05
GL53 Rating:





More Info?
Please contact Charles Lear on 01242 354033 or Request Details

Property Description

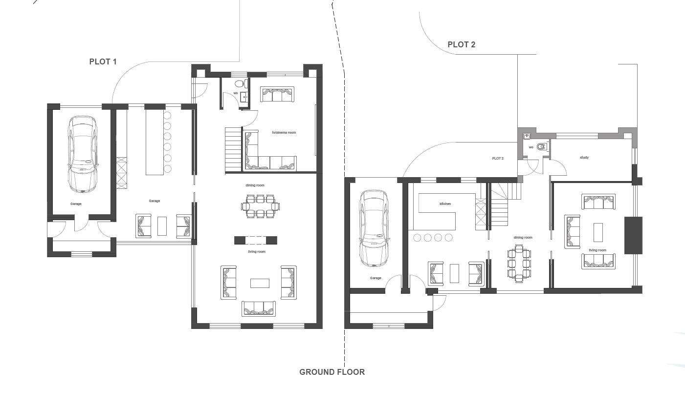
Our clients have obtained full planning consent for the erection of two substantial 2,700sq.Ft. And 2,500sq.Ft. Detached contemporary houses in this quiet position presently occupied by a single storey dwelling that was constructed in the late 1950's.

Description

Measuring approx. 0.25acres, this potential development site is situated on the corner of this highly sought after road in Charlton Kings, one of the towns most popular residential districts and is within a short walk of a number of local amenities including Balcarras School.

General Information

Planning Reference Number: 18/01838/ful

Floor Plans

Property Location

Marketed by Charles Lear


By submitting this form, you accept our Terms of Use.

Disclaimer Property descriptions and related information displayed on this page are marketing materials provided by Charles Lear. estateagents365.uk does not warrant or accept any responsibility for the accuracy or completeness of the property descriptions or related information provided here and they do not constitute property particulars. Please contact Charles Lear for full details and further information.