Land for sale in Bristol BS40, 0 Bedroom

Bristol, Bristol, UK

Quick Summary

Property Type:
Land
Status:
For sale
Price
£ 260,000
Beds:
0
County
Bristol
Town
Bristol
Outcode
BS40
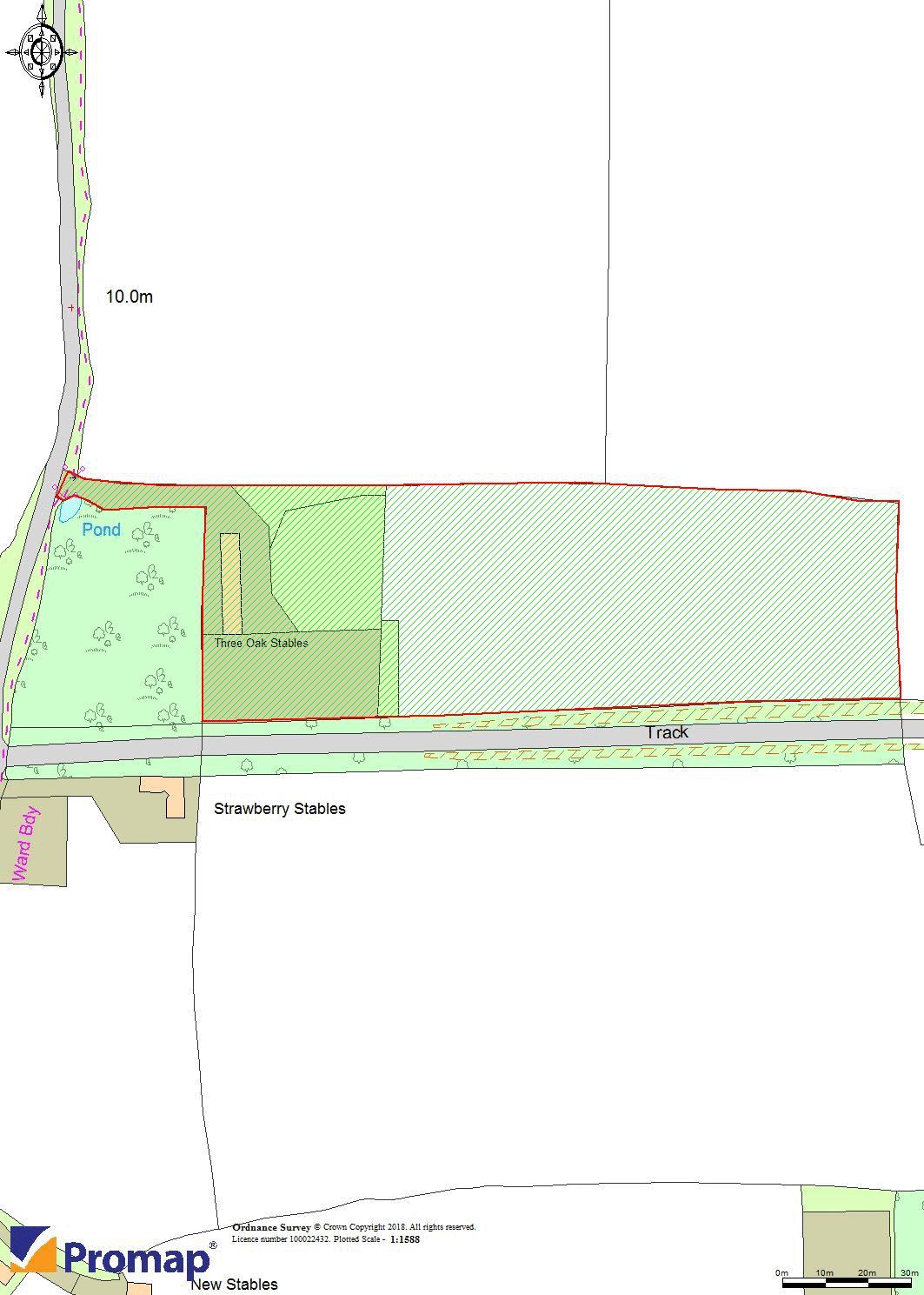
Location
Iwood Lane, Wrington, Bristol BS40
Marketed By:
David Plaister Ltd
Posted
2018-10-08
BS40 Rating:





More Info?
Please contact David Plaister Ltd on 01934 247160 or Request Details

Property Description

Here’s an interesting one! A fantastic and unique opportunity to purchase 2.09 acres of land including three stables, tack room, manège and accommodation with certificate of lawful use. The land is situated in the desirable and sought after Village of Wrington and benefits from being private and enclosed with possible development potential subject to planning and building regulation approval. Wrington is set in beautiful countryside and is conveniently located approximately ten minute drive away from Bristol Airport. The M5 Motorway is within easy reach which provides access to Bristol, Bath and beyond. EPC rating D60.

Bedroom (12' 9'' x 11' 7'' (3.89m x 3.52m))

Doors to land.

Kitchen (12' 8'' x 10' 8'' (3.85m x 3.26m))

UPVC double glazed and velux windows. Range of kitchen units, free standing wood burner, door to wet room with under floor heating, low level W/C, wash hand basin, electric shower, roof light window and vaulted ceiling/timbers.

Porch/Boot Room (6' 2'' x 3' 10'' (1.89m x 1.17m))

Stable door to front of property and door to kitchen.

Wet Room

Low level W/C, wash hand basin and pedestal, tiled walls, ‘walk-in’ shower.

Floor Plans

Property Location

Marketed by David Plaister Ltd


By submitting this form, you accept our Terms of Use.

Disclaimer Property descriptions and related information displayed on this page are marketing materials provided by David Plaister Ltd. estateagents365.uk does not warrant or accept any responsibility for the accuracy or completeness of the property descriptions or related information provided here and they do not constitute property particulars. Please contact David Plaister Ltd for full details and further information.