Property for sale in Todmorden OL14, 2 Bedroom

Todmorden, Todmorden, UK

Quick Summary

Property Type:
Property
Status:
For sale
Price
£ 100,000
Beds:
2
Baths:
1
Recepts:
1
County
West Yorkshire
Town
Todmorden
Outcode
OL14
Location
Pollard Street, Todmorden OL14
Marketed By:
Reeds Rains
Posted
2018-12-27
OL14 Rating:





More Info?
Please contact Reeds Rains on 01706 408692 or Request Details

Property Description



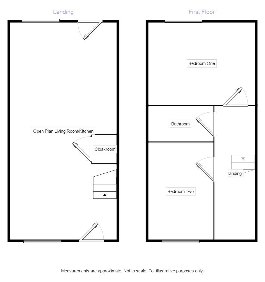
Modern two bedroom town house with allocated car park offered for sale with no onward chain situated in a popular residential location close to schools, Centre Vale Park and bus and rail links. In brief the property comprises Open plan living kitchen area and downstairs WC to the ground floor. Two bedrooms and bathroom to the first floor. Early viewing highly recommended. Awaiting EPC.

Open Plan Living Room / Kitchen (7.57m x 3.76m)

Fitted with a range of matching modern Beech wall and base units with complementary work surfaces. Stainless steel gas hob and gas oven with extractor fan. Stainless steel sink and single drainer. Laminate flooring. Double glazed windows to front and rear.

Cloakroom

Two piece white suite comprising toilet and sink. Radiator.

Bedroom 1 (2.90m x 3.73m)

Window to rear. Radiator.

Bedroom 2 (3.73m x 2.31m)

Window to front. Radiator.

Bathroom

Three piece white bathroom suite with mixer shower taps. Tiling to bath and sink. Extractor fan.

Outside

Steps leading to the entrance.

Important note to purchasers:

We endeavour to make our sales particulars accurate and reliable, however, they do not constitute or form part of an offer or any contract and none is to be relied upon as statements of representation or fact. Any services, systems and appliances listed in this specification have not been tested by us and no guarantee as to their operating ability or efficiency is given. All measurements have been taken as a guide to prospective buyers only, and are not precise. Please be advised that some of the particulars may be awaiting vendor approval. If you require clarification or further information on any points, please contact us, especially if you are traveling some distance to view. Fixtures and fittings other than those mentioned are to be agreed with the seller.

/8

Floor Plans

Property Location

Marketed by Reeds Rains


By submitting this form, you accept our Terms of Use.

Disclaimer Property descriptions and related information displayed on this page are marketing materials provided by Reeds Rains. estateagents365.uk does not warrant or accept any responsibility for the accuracy or completeness of the property descriptions or related information provided here and they do not constitute property particulars. Please contact Reeds Rains for full details and further information.