Property for sale in Motherwell ML1, 3 Bedroom

Motherwell, Motherwell, UK

Quick Summary

Property Type:
Property
Status:
For sale
Price
£ 152,995
Beds:
3
Baths:
2
Recepts:
1
County
North Lanarkshire
Town
Motherwell
Outcode
ML1
Location
Wilkie Drive, Holytown, Motherwell ML1
Marketed By:
Residence
Posted
2024-04-07
ML1 Rating:





More Info?
Please contact Residence on 01698 599807 or Request Details

Property Description

This spacious, Persimmon built semi-detached townhouse is situated within the popular residential ‘Cloverfields’ development.

The property offers a spacious layout of apartments which are formed over 3 levels and comprises reception hall, lounge, modern dining kitchen, utility room, cloakroom wc, three generous bedrooms, master en-suite and a family bathroom.

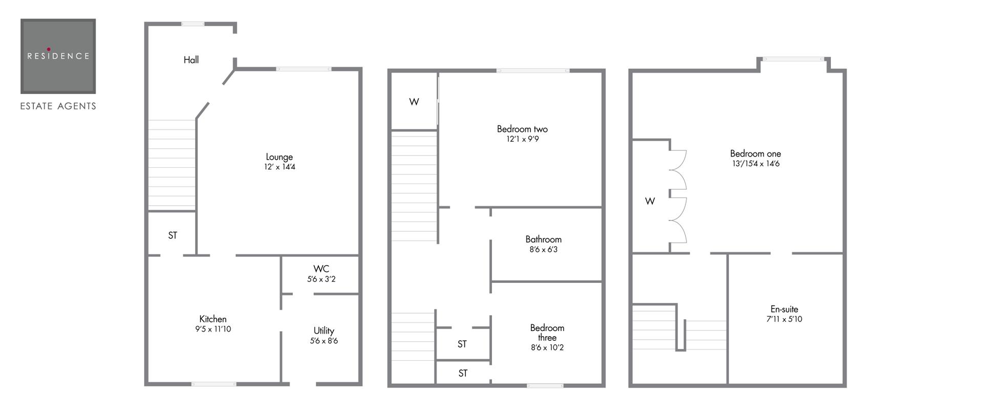
The floor plan shall provide you with a detailed layout of this well laid out and comfortable home.

Features of the property include gas central heating, double glazing, driveway and gardens.

Located on the outskirts of Holytown, near Motherwell, on a modern Persimmon development. With easy access to the M8, local train station, also nearby amenities include local shops and schools, the larger towns of Wishaw and Motherwell are only a five minute drive, thriving towns with all the required facilities, a good range of shops, local markets, recreational and leisure facilities, excellent golf courses, good schools at both primary and secondary levels. The area also favours commuters to both Glasgow and Edinburgh, with good transport links and road networks, easy access to both the M8 and M74 road networks giving good access to Central Scotland and beyond. Nearby are the larger towns of Airdrie, Hamilton, Cumbernauld and East Kilbride.

This spacious, Persimmon built semi-detached townhouse is situated within the popular residential ‘Cloverfields’ development.

Floor Plans

Property Location

Marketed by Residence


By submitting this form, you accept our Terms of Use.

Disclaimer Property descriptions and related information displayed on this page are marketing materials provided by Residence. estateagents365.uk does not warrant or accept any responsibility for the accuracy or completeness of the property descriptions or related information provided here and they do not constitute property particulars. Please contact Residence for full details and further information.