Property for sale in London W6, 3 Bedroom

London, London, UK

Quick Summary

Property Type:
Property
Status:
For sale
Price
£ 1,095,000
Beds:
3
Baths:
2
Recepts:
2
County
London
Town
London
Outcode
W6
Location
Hammersmith Grove, London W6
Marketed By:
Kerr and Co
Posted
2018-09-12
W6 Rating:





More Info?
Please contact Kerr and Co on 020 3478 3490 or Request Details

Property Description

Hammersmith grove, london W6

An exceptional, spacious and well presented three bedroom duplex apartment with accommodation arranged over the top floors of this well located Victorian house.

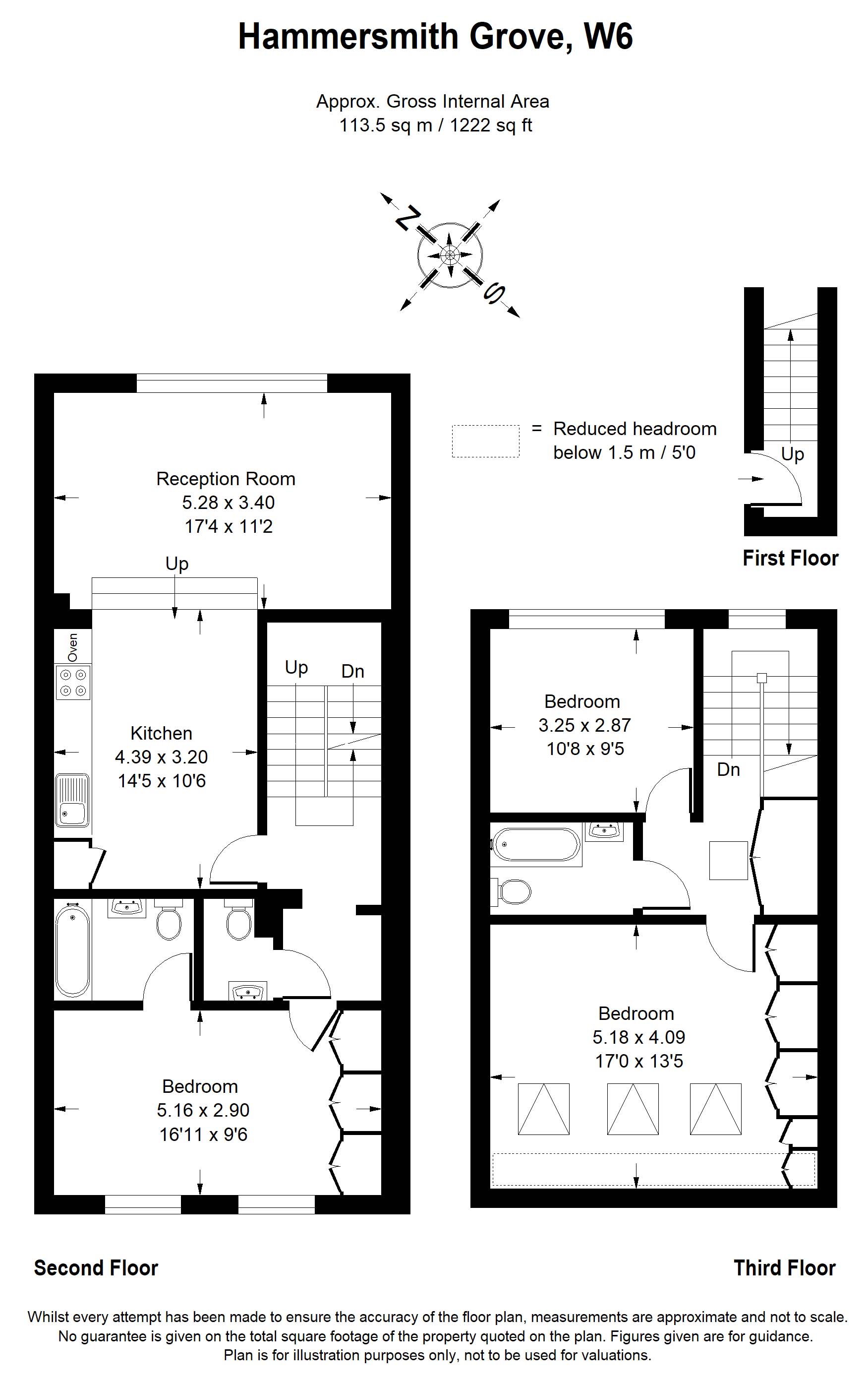
This apartment provides in excess of 1,220 square feet of light and spacious accommodation over two floors. The property provides a master bedroom suite, two further double bedrooms, a family bathroom, separate cloakroom and interlinking reception room and kitchen / dining room. The flat benefits from the entrance being on the first floor, a wonderful open and leafy rear outlook, being within easy reach of the broad transport and retail / leisure facilities at Hammersmith Broadway and King Street.

Guide Price: £1,095,000 Leasehold

Hammersmith grove, london W6 7HB

over 1,200 sq. Ft. Of light and spacious accommodation

Master bedroom suite
two further double bedrooms
family bathroom and separate cloakroom
kitchen / dining room


Large reception room with large picture window.
Fantastic location within easy reach of hammersmith.

Potential for roof terrace subject to the usual consents


Hammersmith grove, W6 7HB

Three double bedroom duplex apartment
gross internal area


1,222 sq. Ft. (113.5 sq. M.)

Guide Price: £1,095,000
Tenure: Leasehold
Service Charge: Tbc
Ground Rent: Tbc

EPC Rating: C80
Parking: Residents parking permit
Council Tax Band: E

Floor Plans

Property Location

Marketed by Kerr and Co


By submitting this form, you accept our Terms of Use.

Disclaimer Property descriptions and related information displayed on this page are marketing materials provided by Kerr and Co. estateagents365.uk does not warrant or accept any responsibility for the accuracy or completeness of the property descriptions or related information provided here and they do not constitute property particulars. Please contact Kerr and Co for full details and further information.