Property for sale in London SE23, 3 Bedroom

London, London, UK

Quick Summary

Property Type:
Property
Status:
For sale
Price
£ 560,000
Beds:
3
County
London
Town
London
Outcode
SE23
Location
Hennel Close, Forest Hill SE23
Marketed By:
Foxtons - Dulwich
Posted
2024-04-11
SE23 Rating:





More Info?
Please contact Foxtons - Dulwich on 020 3542 2183 or Request Details

Property Description

Located on a quiet residential cul-de-sac, this lovely three bedroom house boasts generous living space, a beautiful garden, off-street parking and a garage.

Hennel Close is a quaint residential cul-de-sac within easy reach of a number of local amenities. Local transport links include Forest Hill Station (National Rail).

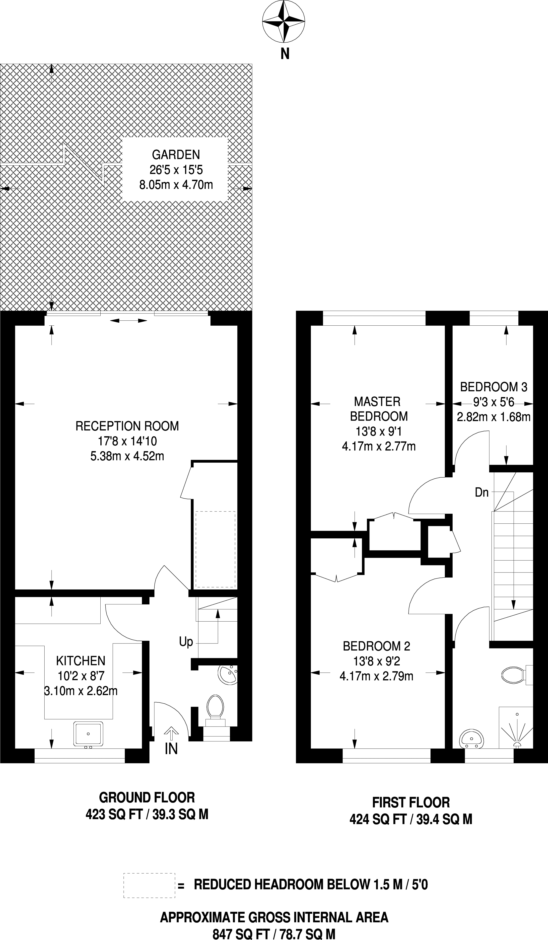
Floor Plans

Property Location

Marketed by Foxtons - Dulwich


By submitting this form, you accept our Terms of Use.

Disclaimer Property descriptions and related information displayed on this page are marketing materials provided by Foxtons - Dulwich. estateagents365.uk does not warrant or accept any responsibility for the accuracy or completeness of the property descriptions or related information provided here and they do not constitute property particulars. Please contact Foxtons - Dulwich for full details and further information.