Flat to rent in Loughborough LE11, 3 Bedroom

Loughborough, Loughborough, UK

Quick Summary

Property Type:
Flat
Status:
To rent
Price
£ 138
Beds:
3
Baths:
1
Recepts:
1
County
Leicestershire
Town
Loughborough
Outcode
LE11
Location
Church Gate, Loughborough LE11
Marketed By:
Huntleys
Posted
2024-05-19
LE11 Rating:





More Info?
Please contact Huntleys on 01509 428995 or Request Details

Property Description

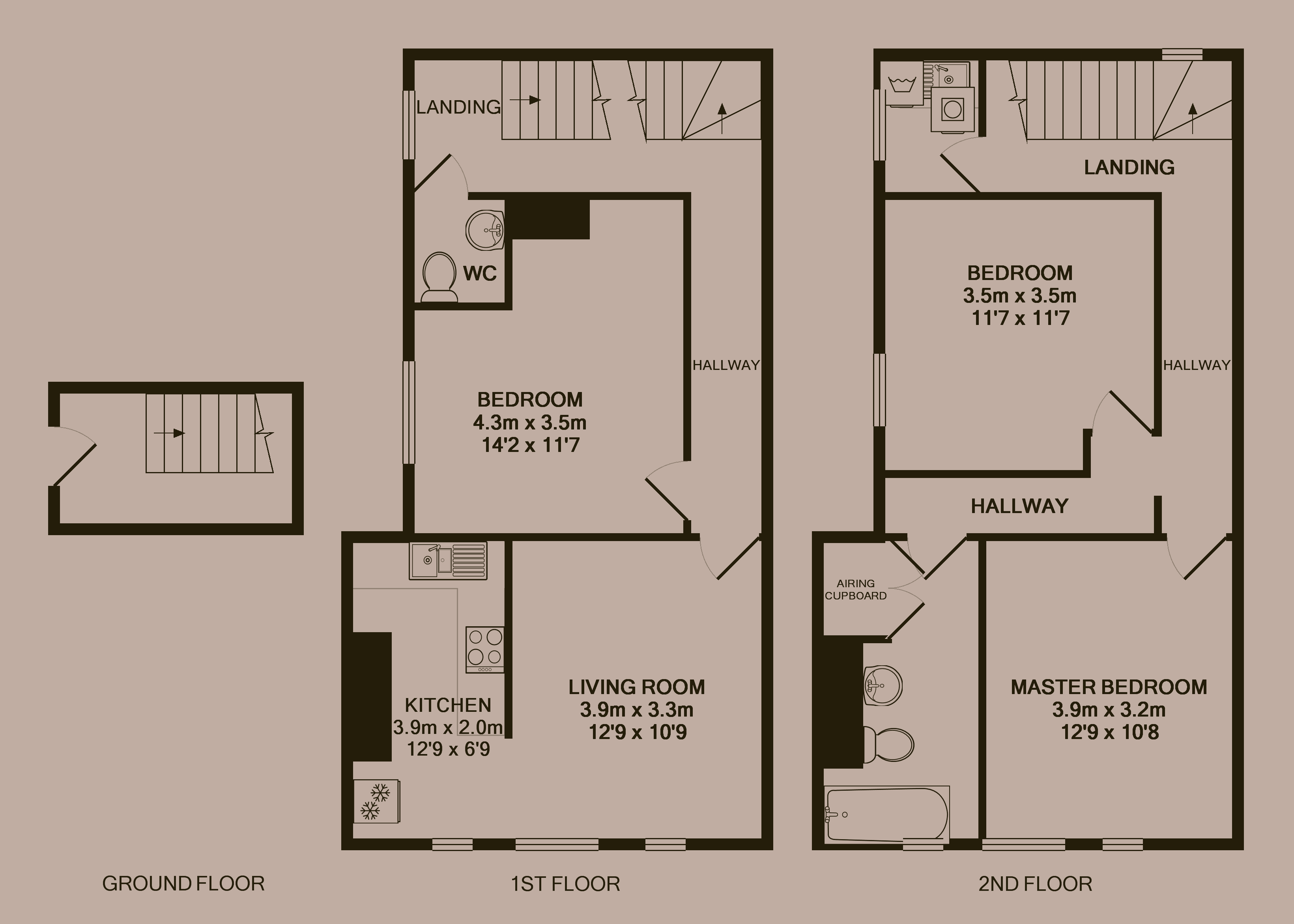
Conveniently situated above this central pedestrianised road, in the town centre. This smart Victorian split-level apartment is a great choice for those wanting to be near all the towns amenities without all the usual traffic. Accommodation comprises of a living room; three double bedrooms; bathroom with shower over the bath; separate toilet; separate utility; Upvc double glazing, gas central heating and allocated parking.
Living Room 3.9m (12'10) x 3.3m (10'10)
Benefitting from newly installed double glazed box sash style windows and wood laminate flooring. This well proportioned room is semi-open to the kitchen keeping the place social.
Kitchen 3.9m (12'10) x 2m (6'7)
Fitted kitchen, white cabinets with inset sink and drainer. Complete with oven, hob and fridge freezer. A separate utility room houses a washing machine and dryer.
Master bedroom 3.9m (12'10) x 3.2m (10'6)
Situated on the top floor, this large double bedroom overlooks the front of the property.
Bedroom Two 4.3m (14'1) x 3.5m (11'6)
Situated on the first floor This double bedroom could easily be used as a separate dining or TV room.
Bedroom Three 3.5m (11'6) x 3.5m (11'6)
Situated on the top floor, this double bedroom has views out over the neighbouring properties.
Bathroom 3.9m (12'10) x 2m (6'7)
Three piece bathroom with electric shower over the bath. A large airing cupboard provides additional storage.
Parking
One allocated parking space to the rear of the property accessed via Biggin Street.
Heating
Gas fired central heating.
Glazing
Modern, good quality, uPVC double glazing.

Floor Plans

Property Location

Marketed by Huntleys


By submitting this form, you accept our Terms of Use.

Disclaimer Property descriptions and related information displayed on this page are marketing materials provided by Huntleys. estateagents365.uk does not warrant or accept any responsibility for the accuracy or completeness of the property descriptions or related information provided here and they do not constitute property particulars. Please contact Huntleys for full details and further information.