Flat to rent in London W6, 2 Bedroom

London, London, UK

Quick Summary

Property Type:
Flat
Status:
To rent
Price
£ 725
Beds:
2
Baths:
2
Recepts:
1
County
London
Town
London
Outcode
W6
Location
Hamlet Gardens, Ravenscourt Park W6
Marketed By:
Benham and Reeves Residential Lettings - Hammersmith
Posted
2024-04-18
W6 Rating:





More Info?
Please contact Benham and Reeves Residential Lettings - Hammersmith on 020 8022 1461 or Request Details

Property Description

Set behind the facade of a red brick mansion block, this two bedroom apartment offers a bright living space and has recently been refurbished. The property is located within walking distance to Ravenscourt Park underground station which is serviced by the District Line.

Set on the second floor, the apartment comprises a reception open planned to an area for dining and a fully fitted kitchen with Bosch appliances and white gloss cabinets. There are two double bedrooms with built-in wardrobes, and two bathrooms (one en-suite) with tiled walls, heated towel rails and fitted showers. Other benefits include wood flooring throughout, pre cabled Sky TV, key entry phone system, cat 4 cables for a high speed internet connection and an on-site manager for the building. The property is offered on a furnished basis.

The property enjoys a location nearby a 32-acre park also named Hamlet Gardens, which features a walled garden, tennis courts and a putting green. The nearest area is Hammersmith, where there are plenty of shops, cafes, restaurants, theatres and cinemas.

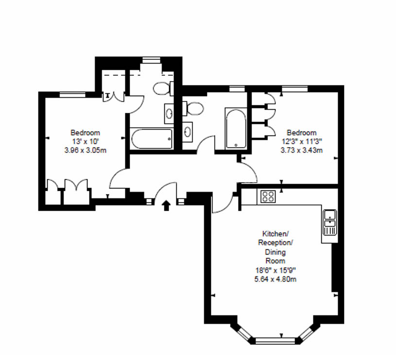
Floor Plans

Property Location

Marketed by Benham and Reeves Residential Lettings - Hammersmith


By submitting this form, you accept our Terms of Use.

Disclaimer Property descriptions and related information displayed on this page are marketing materials provided by Benham and Reeves Residential Lettings - Hammersmith. estateagents365.uk does not warrant or accept any responsibility for the accuracy or completeness of the property descriptions or related information provided here and they do not constitute property particulars. Please contact Benham and Reeves Residential Lettings - Hammersmith for full details and further information.