Flat to rent in London SE15, 3 Bedroom

London, London, UK

Quick Summary

Property Type:
Flat
Status:
To rent
Price
£ 550
Beds:
3
County
London
Town
London
Outcode
SE15
Location
Montague Square, Peckham SE15
Marketed By:
Foxtons - Peckham
Posted
2018-11-11
SE15 Rating:





More Info?
Please contact Foxtons - Peckham on 020 8033 8775 or Request Details

Property Description

Short let. Recently refurbished throughout, this fantastic three bedroom second floor flat is set within a purpose-built development and boasts bright and well-sized living space.

Montague Square is located just off New Cross Road, which offers a great selection of amenities, while local transport links include many bus links into central London.

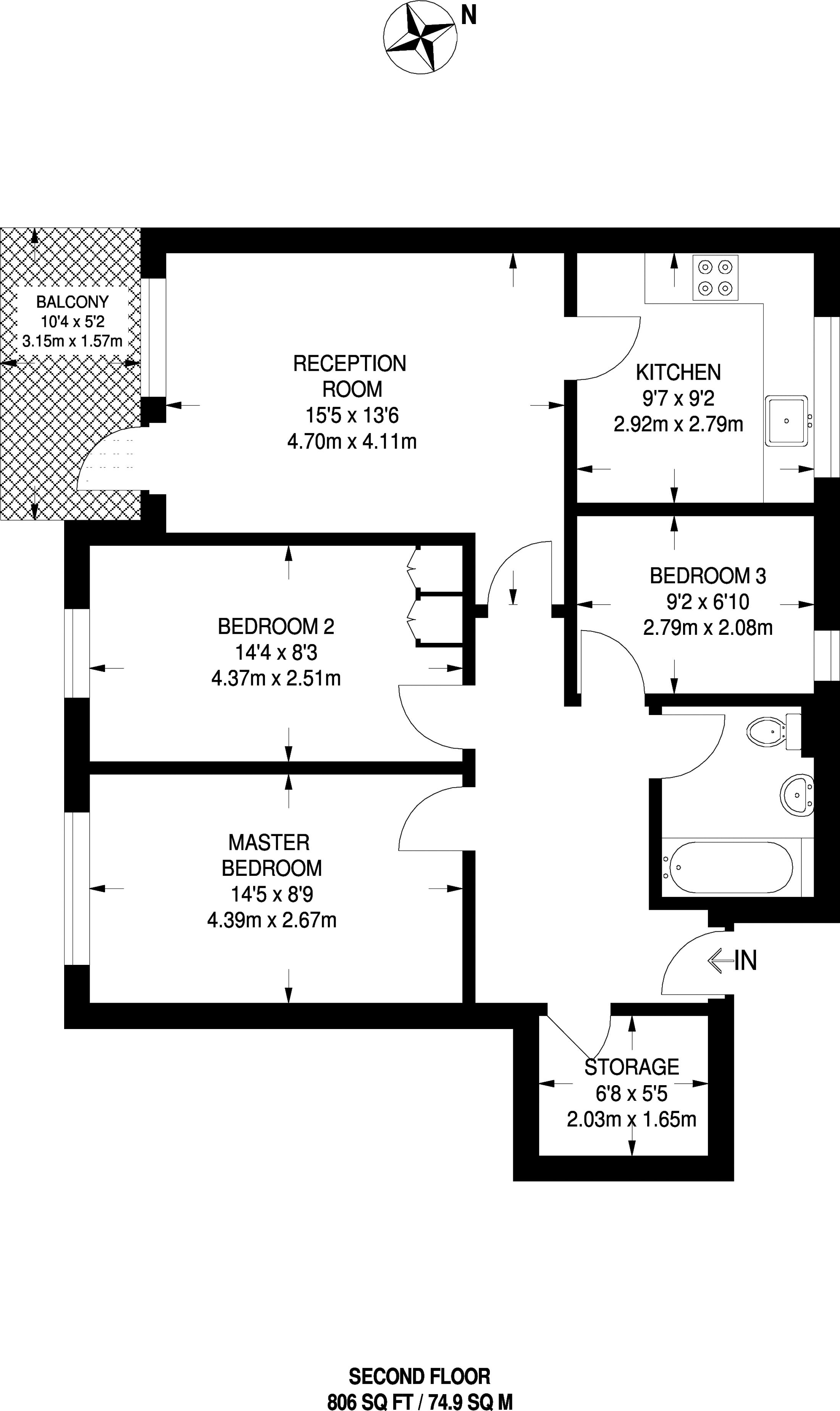
Floor Plans

Property Location

Marketed by Foxtons - Peckham


By submitting this form, you accept our Terms of Use.

Disclaimer Property descriptions and related information displayed on this page are marketing materials provided by Foxtons - Peckham. estateagents365.uk does not warrant or accept any responsibility for the accuracy or completeness of the property descriptions or related information provided here and they do not constitute property particulars. Please contact Foxtons - Peckham for full details and further information.