Flat to rent in London NW10, 2 Bedroom

London, London, UK

Quick Summary

Property Type:
Flat
Status:
To rent
Price
£ 554
Beds:
2
Baths:
1
Recepts:
1
County
London
Town
London
Outcode
NW10
Location
Leighton Gardens, London NW10
Marketed By:
Mile Kensal Rise
Posted
2024-04-11
NW10 Rating:





More Info?
Please contact Mile Kensal Rise on 020 8115 8759 or Request Details

Property Description

This well proportioned and airy apartment of over 730sq ft boasts a lovely reception room with bay windows, a larger than average contemporary fully fitted separate kitchen with under floor heating, two double bedrooms (one with built-in wardrobes) and a modern three piece bathroom.

The property also benefits from double glazed windows throughout, wood flooring in the reception room and carpet in the bedroom, high ceilings and an abundance of natural light and storage space.

Leighton Gardens is an extremely highly sought after residential road and this property is ideally located for Chamberlayne Road and College Road's many restaurants, pubs, independent shops and both Kensal Rise (Overland) and Kensal Green and Queens Park (Bakerloo Line & Overground) stations plus numerous bus routes.

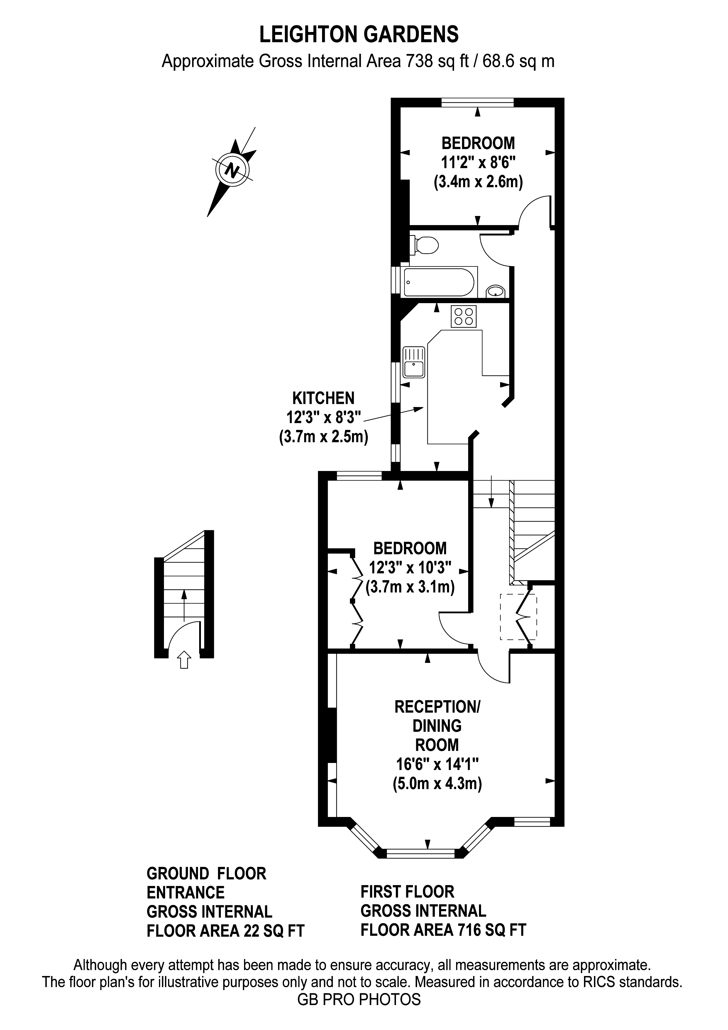
Reception room 16' 6" x 14' 1" (5.03m x 4.29m)

bedroom 12' 3" x 10' 3" (3.73m x 3.12m)

kitchen 12' 3" x 8' 3" (3.73m x 2.51m)

bathroom

bedroom 11' 2" x 8' 6" (3.4m x 2.59m)

Floor Plans

Property Location

Marketed by Mile Kensal Rise


By submitting this form, you accept our Terms of Use.

Disclaimer Property descriptions and related information displayed on this page are marketing materials provided by Mile Kensal Rise. estateagents365.uk does not warrant or accept any responsibility for the accuracy or completeness of the property descriptions or related information provided here and they do not constitute property particulars. Please contact Mile Kensal Rise for full details and further information.