Flat to rent in Guildford GU2, 3 Bedroom

Guildford, Guildford, UK

Quick Summary

Property Type:
Flat
Status:
To rent
Price
£ 346
Beds:
3
Baths:
1
County
Surrey
Town
Guildford
Outcode
GU2
Location
Farnham Road, Guildford GU2
Marketed By:
Foxtons - Guildford
Posted
2024-05-17
GU2 Rating:





More Info?
Please contact Foxtons - Guildford on 01483 665678 or Request Details

Property Description

Zero deposit available. Long let. Ideally located moments from the amenities of Guildford, this fantastic 3 bedroom first floor flat is well presented with bright rooms and a modern finish.

Farnham Road is moments from the shops, bars and restaurants of historic Guildford, the open spaces of Stoke Park, and superb entertainment/leisure facilities.

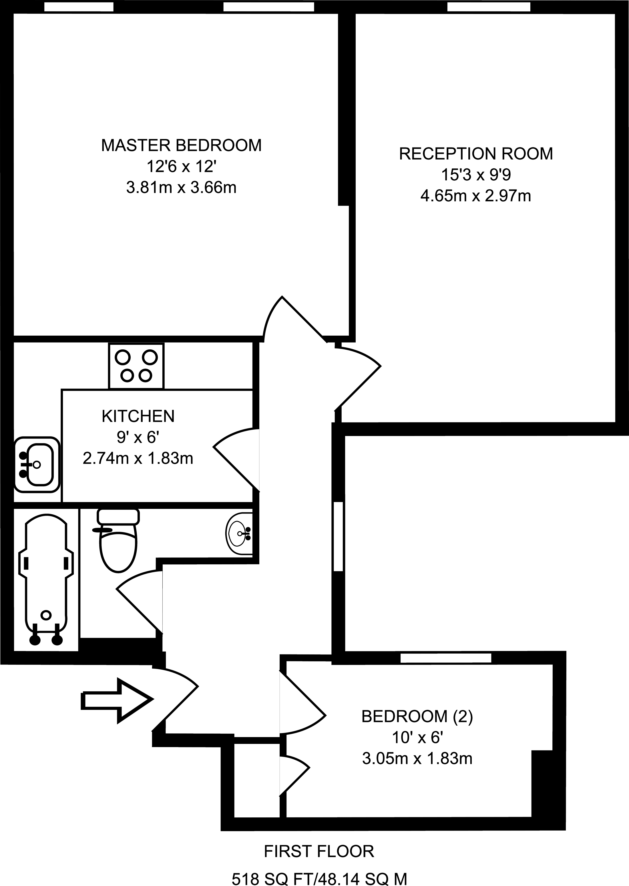
Floor Plans

Property Location

Marketed by Foxtons - Guildford


By submitting this form, you accept our Terms of Use.

Disclaimer Property descriptions and related information displayed on this page are marketing materials provided by Foxtons - Guildford. estateagents365.uk does not warrant or accept any responsibility for the accuracy or completeness of the property descriptions or related information provided here and they do not constitute property particulars. Please contact Foxtons - Guildford for full details and further information.