Flat for sale in Swanley BR8, 2 Bedroom

Swanley, Swanley, UK

Quick Summary

Property Type:
Flat
Status:
For sale
Price
£ 230,000
Beds:
2
Baths:
1
Recepts:
1
County
Kent
Town
Swanley
Outcode
BR8
Location
Goldsel Road, Swanley, Kent BR8
Marketed By:
Robinson Jackson - Swanley
Posted
2024-04-27
BR8 Rating:





More Info?
Please contact Robinson Jackson - Swanley on 01322 584700 or Request Details

Property Description

Attention all commuters! A lovely split level apartment with modern kitchen with breakfast area, 2 double bedrooms and garage en bloc. Offered with no forward chain.

Exterior
Garage: We understand from the owner this property is being sold with an en bloc garage.

Key Terms
Council Tax Band B - Sevenoaks District Council

lease term: 92 years remaining
Ground rent £25pa
Service Charge: £250pa

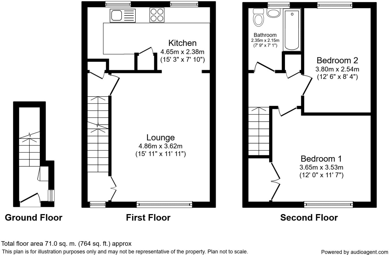
Entrance Hall

Double glazed door to front. Storage cupboard housing meters. Stairs to first floor.

Reception Room (15' 9" x 11' 10" (4.8m x 3.61m))

Double glazed window to front. Radiator.

Kitchen (15' 2" x 7' 10" (4.62m x 2.4m))

Double glazed window to rear. Range of wall and base cabinets with countertop over. Integrated oven, hob with matching extractor, fridge/feezer, dishwasher, washer/dryer and sink.

Inner Hall

Double glazed window to front. Stairs to second floor.

Landing

Access to bedrooms, bathroom and loft. Storage cupboard.

Bedroom One (11' 10" x 11' 5" (3.6m x 3.48m))

Double glazed window to front. Built in wardrobes. Radiator.

Bedroom Two (12' 3" x 8' 3" (3.73m x 2.51m))

Double glazed window to rear. Radiator.

Bathroom (7' 8" x 6' 8" (2.34m x 2.03m))

Opaque double glazed window to rear. Enclosed panelled bath with power shower. Wash basin. Low level WC. Heated towel rail.

Floor Plans

Property Location

Marketed by Robinson Jackson - Swanley


By submitting this form, you accept our Terms of Use.

Disclaimer Property descriptions and related information displayed on this page are marketing materials provided by Robinson Jackson - Swanley. estateagents365.uk does not warrant or accept any responsibility for the accuracy or completeness of the property descriptions or related information provided here and they do not constitute property particulars. Please contact Robinson Jackson - Swanley for full details and further information.