Flat for sale in Ormskirk L39, 2 Bedroom

Ormskirk, Ormskirk, UK

Quick Summary

Property Type:
Flat
Status:
For sale
Price
£ 260,000
Beds:
2
Baths:
1
Recepts:
1
County
Lancashire
Town
Ormskirk
Outcode
L39
Location
Cramford House, Grammar School Gardens, Ormskirk L39
Marketed By:
Arnold and Phillips Estate Agents
Posted
2019-04-04
L39 Rating:





More Info?
Please contact Arnold and Phillips Estate Agents on 01695 361904 or Request Details

Property Description

This simply stunning two bed first floor luxury apartment is sure to invoke interest from a broad range of buyers, whether it be the young professional looking for a trendy pad in which to relax after a hard day in the office, those whose youngsters have flown the nest and are looking to down-size, or perhaps those who spend a lot of time away with work or with a holiday home, and require a secure, low maintenance property. Whatever the motivation for one’s search, this impressive home will not disappoint, with its light-filled living spaces and tasteful décor, whilst the spacious accommodation extends to in excess of a generous 940 square feet, within one of the area's most prestigious addresses. The property is nestled at the heart of the highly desirable and prestigious Ruff Lane conservation area, an area of special architectural and historic interest, the make-up of which is considered worthy of protection, and one only needs to survey this homes surroundings for it to become immediately apparent as to why this location is deemed worthy of such accolades, with its pleasing blend of historical homes, open spaces and landmarks. The location also affords a vast array of convenient benefits, within walking distance of the abundance of shops and amenities within the historic market town of Ormskirk, offering an eclectic range of boutique shops and high street stores, whilst excellent transport links via the nearby M58 and the railway network, the latter of which is again within walking distance, ensures ease of access to major cities such as Manchester and Liverpool. The development itself is renowned for its precise attention to detail and exceptional standards of finish, having been skilfully designed to blend iconic buildings with contemporary builds, each housing a number of executive apartments, with beautifully maintained communal areas which are reminiscent of a boutique hotel, rather than a residential building. This apartment in particular occupies a lovely position within the building, as well as having been fastidiously maintained and improved, with our clients having worked abroad for considerable periods of time, ensuring this home still feels as new as the day it was built and in flawless condition. One enters the building via the secure video entry system, and proceeds via the communal areas up to the first floor, where one can access the private living spaces, entering via the sizeable reception hallway with its useful storage cupboard, before proceeding through into the vast 19’ open plan lounge/diner, which enjoys a fabulous contemporary feel; a lovely environment in which to relax or entertain, complete with quality wooden flooring and simply bursting with light via the large feature bay window. The off-lying 12’ kitchen is separate enough to ensure those cooking smells and noisy washing machines are contained, yet sociable by way of the windows through into the main living room, being very well appointed and fitted with a range of wall and base units in white, with contrasting laminated work surfaces and equipped with a host of integrated appliances, including electric oven, halogen hob with extractor canopy, fridge/freezer, dishwasher and washing machine. The two double bedrooms are both of a fantastic size and benefit from quality fitted wardrobes, whilst our clients cleverly amended the original layout to ensure they both enjoy en-suite facilities, with individual three piece en-suite shower rooms, one of which is also accessible from the hallway, which is useful when visitors drop by. This set-up allows a new owner to select their master bedroom, albeit most will no doubt choose the slightly larger 15’ room, which benefits from another delightful bay window. Externally, as well as the immaculate manicured lawns, residents can enjoy a real feeling of exclusivity and privacy, with the building approached via electronically-operated gates, which provide access to the car park, where one can access the allocated parking facilities. We would highly recommend an internal inspection to fully appreciate all that this home has to offer, including a care-free lifestyle and a wonderfully sociable and diverse community.

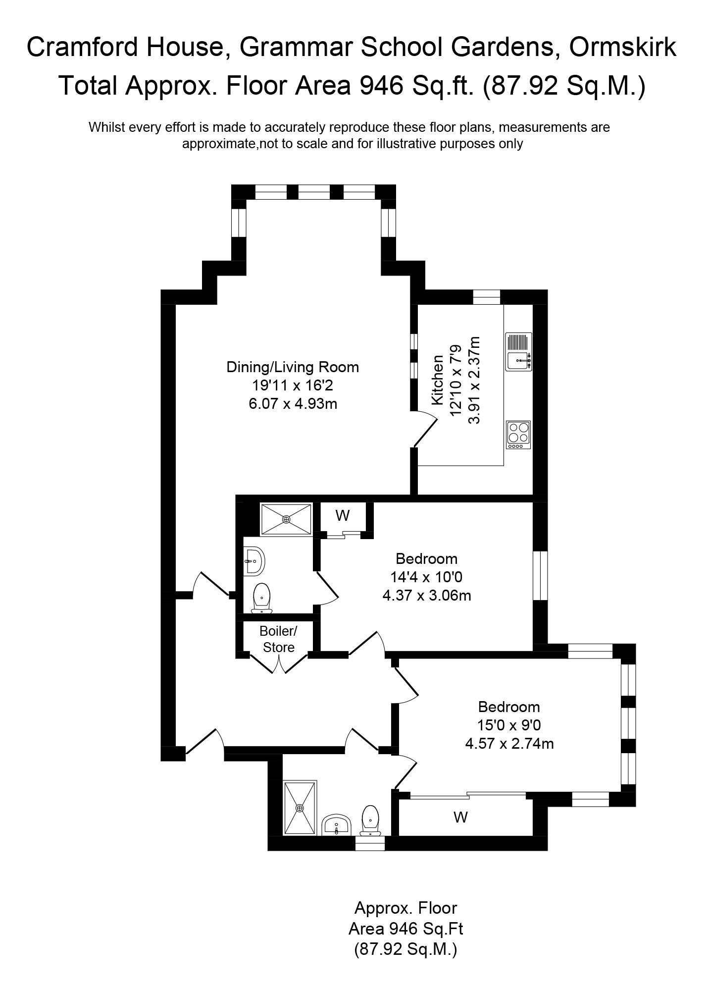
Floor Plans

Property Location

Marketed by Arnold and Phillips Estate Agents



By submitting this form, you accept our Terms of Use.

Disclaimer Property descriptions and related information displayed on this page are marketing materials provided by Arnold and Phillips Estate Agents. estateagents365.uk does not warrant or accept any responsibility for the accuracy or completeness of the property descriptions or related information provided here and they do not constitute property particulars. Please contact Arnold and Phillips Estate Agents for full details and further information.