Flat for sale in Northampton NN2, 2 Bedroom

Northampton, Northampton, UK

Quick Summary

Property Type:
Flat
Status:
For sale
Price
£ 160,000
Beds:
2
County
Northamptonshire
Town
Northampton
Outcode
NN2
Location
Park House Apartments, Kingsley Park Terrace, Northampton NN2
Marketed By:
Jackson Grundy, Kingsley
Posted
2024-04-19
NN2 Rating:





More Info?
Please contact Jackson Grundy, Kingsley on 01604 318602 or Request Details

Property Description

Jackson Grundy are delighted to offer for sale this modern, light and airy spacious top floor apartment. The accommodation offers open plan living with a range of integrated appliances, two double bedrooms and bathroom. Externally there is secure off road parking for two vehicles. Other benefits include double glazing and gas radiator heating. Viewing is highly recommended. EPC: Tbc


Local area information


The area of Kingsley derived its name from its position as an outlying corner of Kingsthorpe manor with the main focal point being the Racecourse. This large green open space has defined the development of houses around it and whilst no longer used for spring and autumn racing it is preserved as an open recreation ground. It was also the cessation of racing that led to the Kingsley Park Hotel standing empty for some 18 years and being nicknamed The White Elephant, a name it retains today. The remainder of local facilities are predominantly located along Kingsley Park Terrace and include restaurants, take away foods, general stores, building society, hair salons, car parts and chemist, though residents can access Northampton town centre's additional shops, entertainment venues and facilities a mile away, including a train station with mainline services to London Euston and Birmingham New Street.


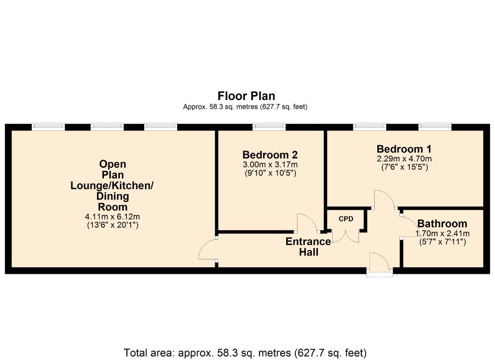
The accommodation comprises

entrance hall


Entrance door to apartment. Storage cupboard. Doors to connecting rooms.

Open plan lounge/kitchen/dining room 4.11m (13'6) x 6.12m (20'1)
Three double glazed windows to front elevation. Two radiators. Laminate flooring through to kitchen area, which has a range of wall mounted and base level units and drawers with work surface over, integrated oven, hob and extractor, dishwasher and fridge/freezer. One and a half bowl sink and drainer unit. Tiling to splash back areas. Space and plumbing for washing machine.

Bedroom one 2.29m (7'6) x 4.70m (15'5)
Two double glazed windows to rear elevation. Radiator.

Bedroom two 3.00m (9'10) x 3.18m (10'5)
Double glazed window to rear elevation. Radiator.

Bathroom 1.70m (5'7) x 2.41m (7'11)
Fitted with a three piece suite comprising panelled bath with shower over, low level WC and pedestal wash hand basin. Tiling to splash back areas. Ceramic tiled floor. Heated towel radiator.


Outside


Two allocated parking spaces.


Draft details


At the time of print, these particulars are awaiting approval from the Vendor(s).

Agent's note(S)

The heating and electrical systems have not been tested by the selling agent jackson grundy.


Viewings


By appointment only through the agents jackson grundy – open seven days a week.


Financial advice


We offer free independent advice on arranging your mortgage. Please call our Consultant on . Written quotations available on request. “your home may be repossessed if you do not keep up repayments on A mortgage or any other debt secured on it”.

Floor Plans

Property Location

Marketed by Jackson Grundy, Kingsley



By submitting this form, you accept our Terms of Use.

Disclaimer Property descriptions and related information displayed on this page are marketing materials provided by Jackson Grundy, Kingsley. estateagents365.uk does not warrant or accept any responsibility for the accuracy or completeness of the property descriptions or related information provided here and they do not constitute property particulars. Please contact Jackson Grundy, Kingsley for full details and further information.