Flat for sale in London W14, 2 Bedroom

London, London, UK

Quick Summary

Property Type:
Flat
Status:
For sale
Price
£ 1,500,000
Beds:
2
Baths:
2
Recepts:
1
County
London
Town
London
Outcode
W14
Location
375 Kensington High Street, Wolfe House, London W14
Marketed By:
UK Homes Enterprise
Posted
2024-04-01
W14 Rating:





More Info?
Please contact UK Homes Enterprise on 020 8022 9983 or Request Details

Property Description

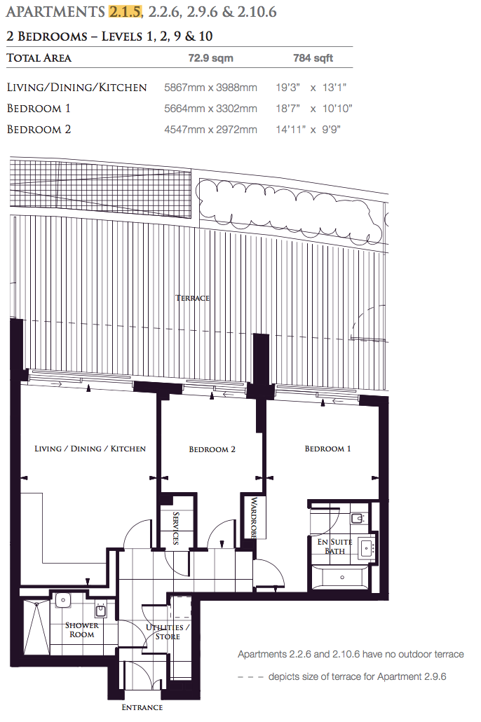
An outstanding large two bedroom flat to buy in Kensington, W14 for £1,500,000. A truly stunning two double bedroom apartment with a large terrace situated in this prestigious new residential complex, 375 Kensington High Street. This first-floor apartment in Wolfe House comprises of a large living/dining area, modern fitted kitchen with Miele appliances, one master bedroom with en-suite, one further luxurious bedroom, one guest bathroom and coats/ service cupboard. This development is situated in one of London's most incredible locations with a concierge in each House and an array of shops and cafes.

First Floor:

New Residential Complex- 375 Kensington High Street:

0.2 Miles to High Street Kensington:

24-hour Concierge & Facilities: Residents Gym, Sauna and Spa, Conference Hall

Floor Plans

Property Location

Marketed by UK Homes Enterprise


By submitting this form, you accept our Terms of Use.

Disclaimer Property descriptions and related information displayed on this page are marketing materials provided by UK Homes Enterprise. estateagents365.uk does not warrant or accept any responsibility for the accuracy or completeness of the property descriptions or related information provided here and they do not constitute property particulars. Please contact UK Homes Enterprise for full details and further information.